Large secluded plot with huge completion and development potential for buyers or investors.
- Newly constructed manor‑proportioned detached house on c.2.7 acres
- Four double bedrooms, one en suite, large open‑plan living/kitchen/dining
- Integral triple garage with internal access to utility
- Part‑completed shell: requires windows, doors, heating, electrics, plaster
- Sold as stands and chain free
- Flexible site potential (equestrian, holiday let, leisure) subject to planning
- Slow broadband and average mobile signal; remoter rural location
- Council Tax band not yet determined; buyers to budget for completion costs
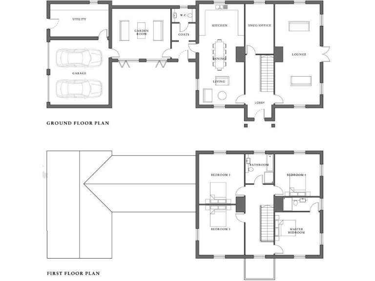
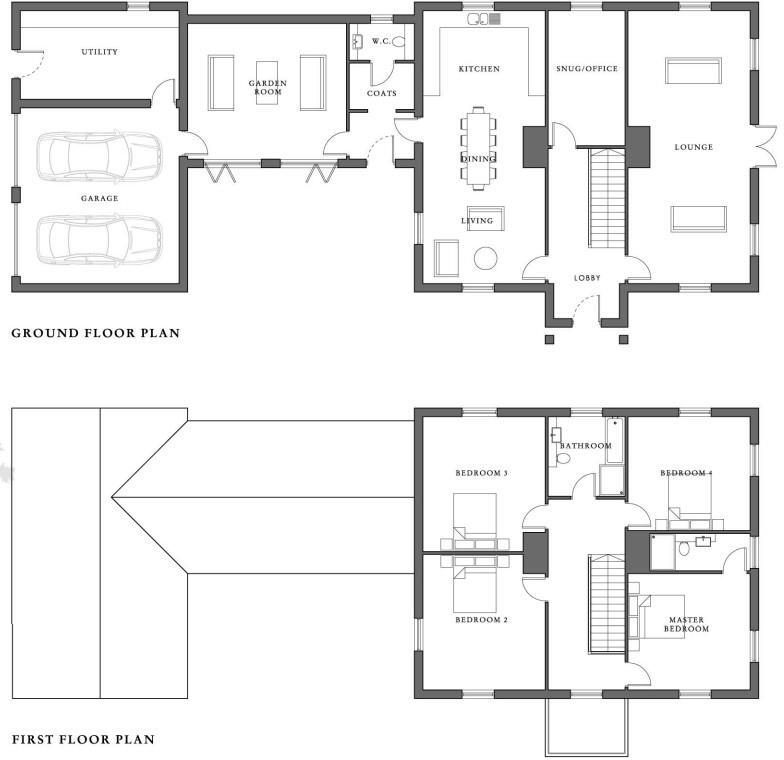
A substantial newly constructed, manor‑proportioned detached house set within approximately 2.7 acres of private Lincolnshire grounds. The current shell provides four double bedrooms (one en suite), a grand lounge, open-plan living/kitchen/dining, garden room, home office/snug and an integral triple garage. The location is private and quietly positioned between Gayton le Marsh and Withern with easy access to Louth, Alford and the Lincolnshire coast.
This is a part-completed project sold as stands. Significant second‑fix works remain: windows and external doors, heating, full electrical installation, plastering and internal finishes. Buyers should budget for completion works and factor in typical new‑build commissioning and snagging.
The large plot (c.2.7 acres) creates flexible possibilities for equestrian use, holiday accommodation, leisure features or additional outbuildings, subject to planning permission. The plot planning reference is N/058/00596/15. The property is freehold and offered chain free.
Practical considerations include slow broadband speeds, average mobile signal, and a location classed as remoter communities — excellent for seclusion but less convenient for high-speed connectivity and some services. Council tax band is not yet determined. This opportunity will suit developers, investors or buyers prepared to complete and customise a significant rural residence to their specification.
5 bedroom detached house for sale in Hodgetoft Lane, Maltby Le Marsh, Alford, LN13 — £650,000 • 5 bed • 3 bath
6 bedroom detached house for sale in Main Road, Withern, Alford, LN13 — £500,000 • 6 bed • 3 bath • 2328 ft²
4 bedroom detached house for sale in The Paddock, Main Street, West Ashby, LN9 — £385,000 • 4 bed • 2 bath • 2516 ft²
4 bedroom detached house for sale in South Elkington, Louth, LN11 — £600,000 • 4 bed • 2 bath • 2107 ft²
3 bedroom detached house for sale in Main Road, Gayton Top, LN13 — £495,000 • 3 bed • 2 bath • 1411 ft²
5 bedroom detached house for sale in Top Lane, Goulceby, LN11 — £895,000 • 5 bed • 3 bath • 4000 ft²


















































































