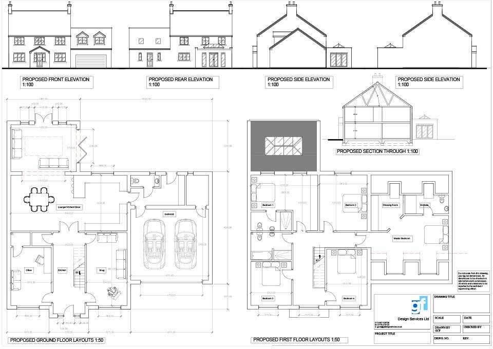
Near-complete bespoke five-bedroom family home on a generous plot with buyer specification input..
Five bedrooms with three en-suite bathrooms
Open-plan kitchen/dining/reception — modern layout
Integral double garage and large driveway for caravans
Partway through construction; internal finishes outstanding
Buyer can influence final specification before completion
Privately enclosed plot with good outdoor space
Average mobile and broadband; remoter village location
Freehold; no identified flood risk
This individually designed five-bedroom home sits partway through construction, offering a rare chance to influence the final specification before completion. The layout suits a large or growing family: three en-suite bedrooms, a master with dressing room, two reception rooms and a large open-plan kitchen/dining/reception space create flexible everyday and entertaining zones.
The property occupies an impressive, privately enclosed plot in a quiet village setting close to Alford, with an integral double garage and a spacious driveway capable of accommodating cars, caravans or motorhomes. The build shows a contemporary brick exterior and timber roof framework; the vendor will complete the finishes but purchasers can still request input on fittings and finishes.
Buyers should note this is an active building site. Internal finishes, services and fixtures remain to be completed and should be inspected and independently verified; purchasers must satisfy themselves on specification, timing and any outstanding works. Broadband and mobile signals are average locally, and the area is classed as more remote with lower local services provision.
Practical positives include freehold tenure, no identified flood risk, low local crime and proximity to a mix of well-rated primary and secondary schools. The property will appeal to families seeking a contemporary, spacious home on a generous plot and to buyers who want to personalise a near-complete new build rather than starting from scratch.
4 bedroom detached house for sale in Bridgeways, Alford, LN13 — £330,000 • 4 bed • 4 bath • 1330 ft²
5 bedroom detached house for sale in The Grove off Ramsgate Road, Louth, LN11 — £795,000 • 5 bed • 5 bath • 3908 ft²
4 bedroom detached house for sale in Louth Road, Gayton Le Marsh, Alford, LN13 — £595,000 • 4 bed • 2 bath
3 bedroom semi-detached house for sale in Bridgeways, Alford, LN13 — £210,000 • 3 bed • 2 bath • 774 ft²
4 bedroom detached house for sale in 108 Horncastle Road, Woodhall Spa, LN10 — £799,995 • 4 bed • 4 bath • 2036 ft²
4 bedroom detached house for sale in East Street, Alford, LN13 — £480,000 • 4 bed • 2 bath • 2655 ft²


























































