Chain-free family house with garage, large garden and nearby excellent schools.
Chain free vacant possession for a quicker move-in
Modern fitted kitchen; UPVC double glazing throughout
Detached garage and concrete driveway with parking for several cars
Good size rear garden; large plot for extension subject to planning
Combination boiler heating; buyers should verify appliance condition
Third bedroom is small — better as nursery or study
Single shower room only; bathroom upgrade potential
Situated near highly rated primary schools and low-crime area
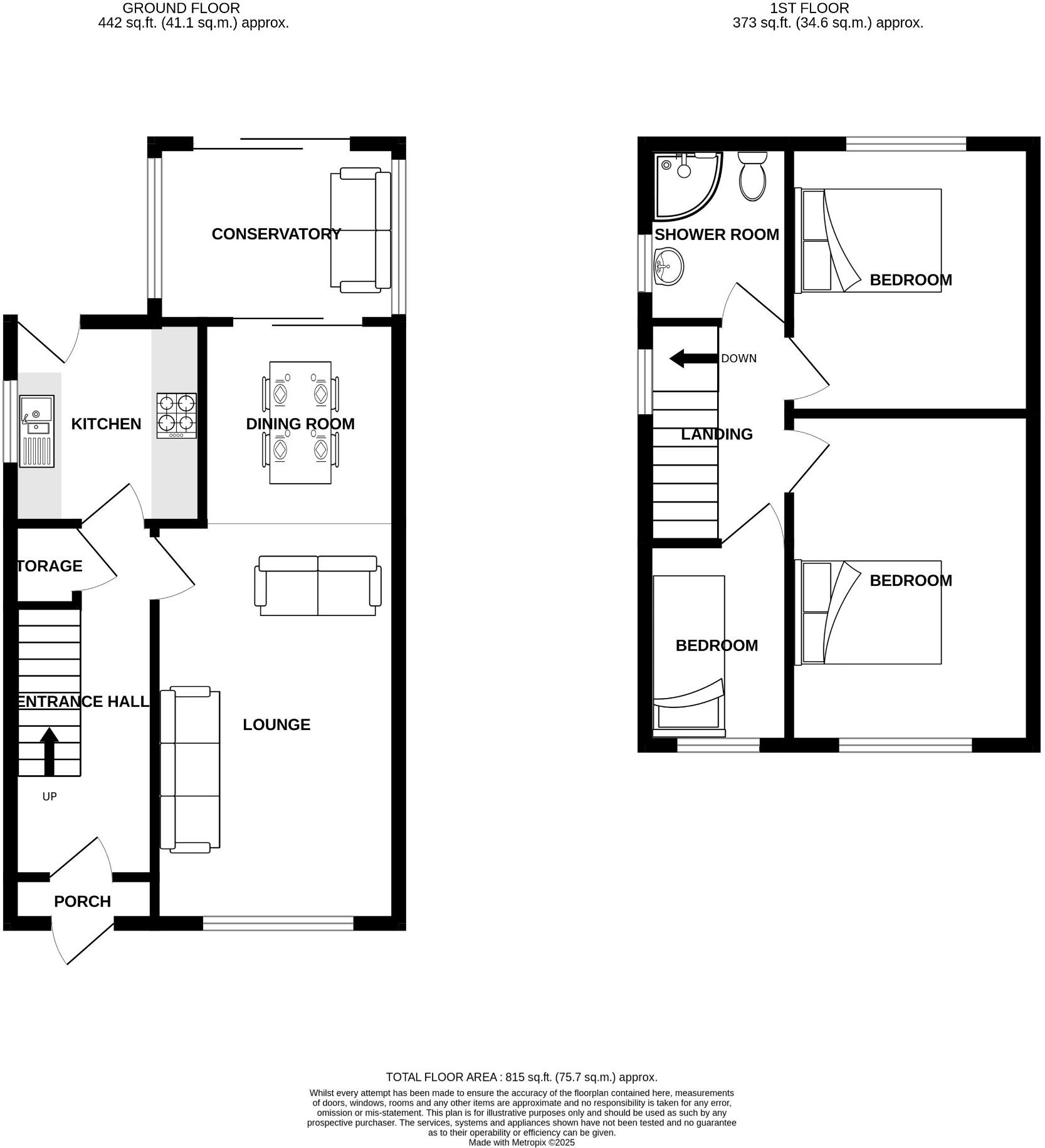
Set on a large plot in a sought-after Whitby street, this chain-free three-bedroom semi delivers practical family living with parking and outdoor space. The layout includes a lounge, dining room, conservatory and a modern kitchen, plus a detached garage and concrete driveway — useful for growing households and weekend projects. The property is freehold, in Council Tax Band C and sits in an area with good schools and low crime.
Internally the home is well-presented with UPVC double glazing and gas central heating via a combination boiler. Rooms are a comfortable, average size across roughly 815 sq ft, with a bright conservatory extending living space into the rear garden. Broadband and mobile signal are noted as strong, supporting home working or streaming.
There is obvious potential to modernise or reconfigure to suit a new owner: the third bedroom is compact and the property offers scope for kitchen or bathroom upgrades to increase value. Important: services (gas, electrical and heating) have not been tested and buyers should verify them before committing. Overall, this is a practical, chain-free family home in an affluent, well-connected neighbourhood.
3 bedroom semi-detached house for sale in Capenhurst Lane, Whitby, CH65 — £200,000 • 3 bed • 1 bath • 791 ft²
3 bedroom detached house for sale in Chester Road, Whitby, CH66 — £305,000 • 3 bed • 1 bath • 1091 ft²
3 bedroom semi-detached house for sale in Mansfield Road, Whitby, CH65 — £199,995 • 3 bed • 1 bath • 714 ft²
3 bedroom detached house for sale in Orchard Road, Whitby, CH65 — £290,000 • 3 bed • 1 bath • 862 ft²
3 bedroom terraced house for sale in Pooltown Road, Whitby, CH65 — £185,000 • 3 bed • 1 bath • 800 ft²
3 bedroom semi-detached house for sale in Underwood Drive, Ellesmere Port, Cheshire, CH65 — £255,000 • 3 bed • 2 bath • 1050 ft²


































































































