Chain-free three-bed with driveway and garden in a sought-after location.
No onward chain — immediate completion possible
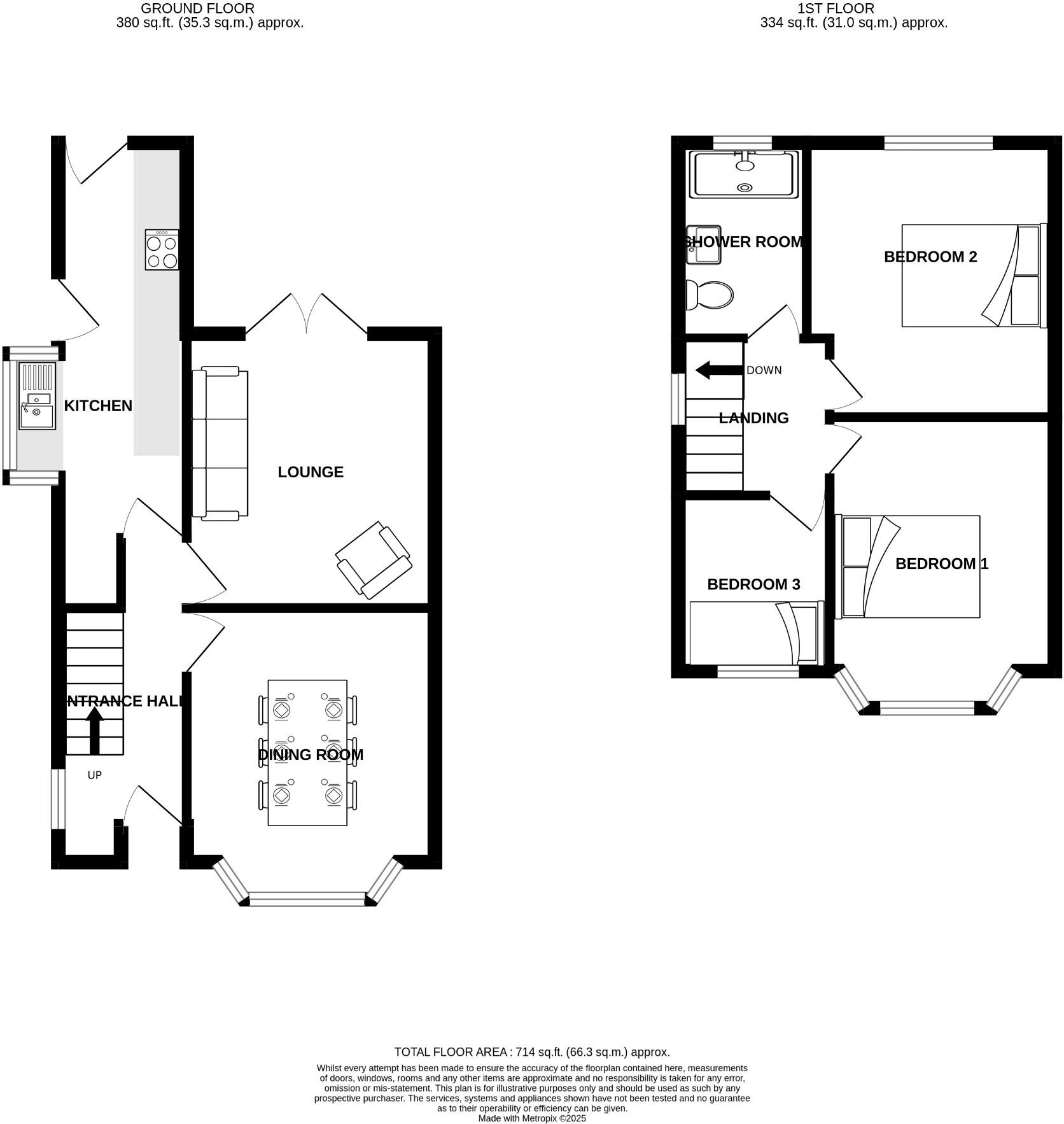
No onward chain and a modest footprint make this three-bedroom semi a straightforward buy for first-time buyers or those downsizing. The house benefits from a modern fitted kitchen, contemporary shower room and UPVC double glazing, with living space arranged across two reception rooms and a practical layout.
Outside there’s a small but usable rear garden and off-street parking on the driveway. Accommodation totals around 714 sq ft, with comfortable principal rooms including a bay-front lounge and a long kitchen that adds usable family space. Council Tax Band B keeps running costs low.
The property is freehold and located in a sought-after Whitby street close to primary and secondary schools rated Good or Outstanding, local amenities and good broadband and mobile coverage. The house is well suited to a buyer wanting move-in-ready basics with scope for further cosmetic updates.
Buyers should note the overall plot and room sizes are modest and the vendor hasn’t verified services; purchasers should satisfy themselves on gas, electrical and heating systems. Some buyers may see renovation potential to increase value, while others will appreciate the ready-to-live-in aspects and chain-free purchase.
3 bedroom semi-detached house for sale in Capenhurst Lane, Whitby, CH65 — £200,000 • 3 bed • 1 bath • 791 ft²
3 bedroom end of terrace house for sale in Thamesdale, Whitby, CH65 — £195,000 • 3 bed • 1 bath • 1216 ft²
3 bedroom detached house for sale in Orchard Road, Whitby, CH65 — £290,000 • 3 bed • 1 bath • 862 ft²
3 bedroom semi-detached house for sale in Walnut Grove, Whitby, CH66 — £230,000 • 3 bed • 1 bath • 810 ft²
3 bedroom semi-detached house for sale in Whitby Road, Whitby, Ellesmere Port, CH65 — £180,000 • 3 bed • 1 bath • 1023 ft²
3 bedroom terraced house for sale in Pooltown Road, Whitby, CH65 — £185,000 • 3 bed • 1 bath • 800 ft²






















































































