Quiet Whitby location with garage, garden and scope to personalise for a growing family.
No onward chain — vacant possession available
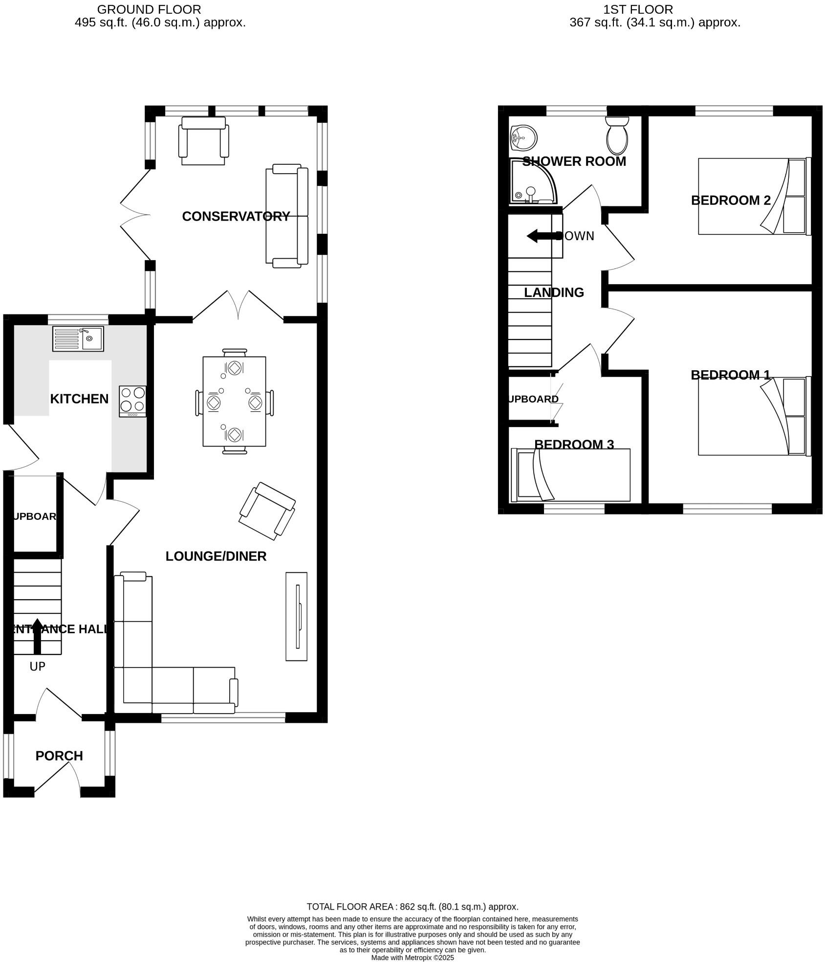
Detached single garage plus driveway for off-street parking
Conservatory extends living space into the garden
Worcester boiler and UPVC double glazing throughout
Single contemporary shower room only — one bathroom for three bedrooms
Compact kitchen and average 862 sq ft living space
Set on a pleasant plot in quiet Whitby, this three-bedroom detached home offers straightforward family living with no onward chain. The property benefits from a detached single garage with driveway parking, a conservatory that extends the living space, and a well-kept front and rear garden perfect for children or casual entertaining.
Internally the house is practical and well-maintained: UPVC double glazing and a Worcester boiler provide reliable insulation and heating, while the roomy lounge/diner forms the social heart of the home. The kitchen and contemporary shower room are functional, though the kitchen is compact and the property has only one bathroom for three bedrooms.
At about 862 sq ft the accommodation is average-sized and will suit growing families looking for an affordable detached house in an established neighbourhood. The layout offers clear scope for cosmetic updating or modest reconfiguration if a buyer wants to increase value or personalise finishes.
Buyers should note the single bathroom and smaller kitchen when assessing suitability. Services and central heating have not been tested and purchasers are advised to satisfy themselves on all mechanicals and electrics prior to legal commitment.
3 bedroom detached house for sale in Cavendish Gardens, Whitby, CH65 — £249,995 • 3 bed • 2 bath • 926 ft²
3 bedroom detached house for sale in Chester Road, Whitby, CH66 — £305,000 • 3 bed • 1 bath • 1091 ft²
3 bedroom semi-detached house for sale in Woodland Road, Whitby, CH65 — £219,500 • 3 bed • 1 bath • 815 ft²
3 bedroom detached house for sale in Wyedale, Whitby, CH65 — £365,000 • 3 bed • 1 bath • 1126 ft²
3 bedroom end of terrace house for sale in Thamesdale, Whitby, CH65 — £195,000 • 3 bed • 1 bath • 1216 ft²
3 bedroom detached house for sale in Dunkirk Drive, Whitby, Cheshire, CH65 — £280,000 • 3 bed • 1 bath • 954 ft²














































































