CH65 7BY - 3 bedroom terraced house for sale in Pooltown Road, Whitby,…

View on Property Piper

3 bedroom terraced house for sale in Pooltown Road, Whitby, CH65

Summary - 154 Pooltown Road,ELLESMERE PORT,CH65 7BY CH65 7BY

3 bed 1 bath Terraced

**Key Features:**
- Chain-free
- Modern kitchen and bathroom
- Three spacious bedrooms
- Large rear garden
- UPVC double glazing
- Off-street parking with a driveway
- Combination boiler
- Good local primary and secondary schools nearby

This contemporary mid-terrace property located in the sought-after area of Whitby is perfect for families or first-time buyers looking for a comfortable, move-in ready home. With three generous bedrooms, a modern kitchen and bathroom, and an inviting lounge, you’ll enjoy plenty of room to grow. The property boasts a large rear garden ideal for outdoor activities or gardening enthusiasts, along with off-street parking to cater to your convenience.

While the neighborhood does experience above-average crime and is classified as deprived, the proximity to good schools and fast broadband speeds can offer both comfort and connectivity. With council tax at an affordable rate, this property is an excellent investment for those seeking value without compromising on essential amenities. Act quickly, as opportunities like this do not last long!

Property Details

Image Descriptions

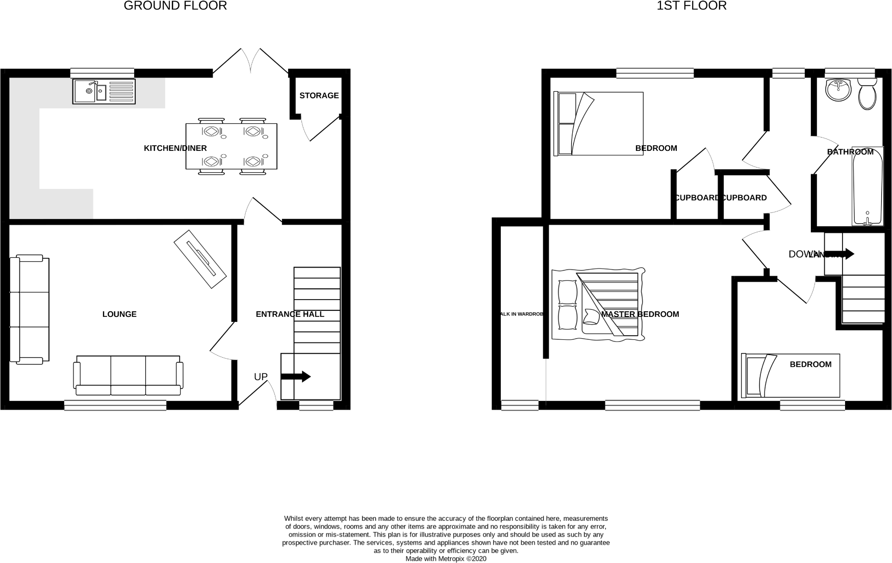
Floorplan Description

Rooms

Textual Property Features

Detected Visual Features

Nearby Schools

Nearest Bars And Restaurants

,,,,}

Nearest General Shops

,,}

Nearest Grocery shops

,,}

Nearest Supermarkets

,,}

Nearest Religious buildings

,,}

Nearest Medical buildings

,,,}

Nearest Airports

}

Nearest Leisure Facilities

,,,,}

Nearest Tourist attractions

,,}

Nearest Train stations

,,,,}

Nearest Bus stations and stops

,,,,}

Nearest Hotels

,,}

Tags

Local Market Stats

Similar Properties

Meta

High Res Images

Compatible Images

Low res Images

Thumbnails

Raw Images

High Res Floorplan Images

Compatible Floorplan Images

Low res Floorplan Images

FloorplanImages Thumbnail

Raw Floorplan Images