Short walk to station and shops, ideal starter family base.
Three bedrooms with refitted shower room and separate cloakroom
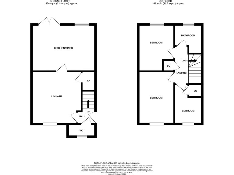
A well-presented three-bedroom semi-detached home in a quiet cul-de-sac close to Biggleswade town centre and the train station. The ground floor offers a separate lounge, cloakroom and an open kitchen/diner with French doors opening onto an enclosed rear garden; a useful single garage and driveway provide private parking. Heating is gas central heating with double glazing throughout, and the shower room was refitted for modern convenience.
The property suits a young or growing family seeking easy access to local shops, schools and transport links. Rooms are sensibly arranged over two floors: two main bedrooms of reasonable size and a smaller third bedroom or study. The plot is modest and low-maintenance, with a paved patio and lawn extending behind the garage.
Practical points to note: overall living space is compact (approximately 697 sq ft) and the house has a single shower room plus a cloakroom, so peak-time bathroom use may be constrained. The third bedroom is noticeably small and best suited as a child's room or study. Buyers seeking large gardens, expansive rooms or additional bathrooms should be aware of these limits, though the property offers straightforward potential for modest updates.
Well-located, freehold and with fast broadband and low local crime, this home works as a convenient commuter base or a manageable family starter home for those looking for easy upkeep and close amenities.
3 bedroom semi-detached house for sale in Rowletts View, Biggleswade, SG18 — £385,000 • 3 bed • 1 bath • 732 ft²
3 bedroom semi-detached house for sale in Dells Lane, Biggleswade, SG18 — £365,000 • 3 bed • 1 bath • 1006 ft²
3 bedroom semi-detached house for sale in Thames Bank, Biggleswade, SG18 — £375,000 • 3 bed • 2 bath • 756 ft²
3 bedroom semi-detached house for sale in Banks Road, Biggleswade, SG18 — £365,000 • 3 bed • 1 bath • 676 ft²
3 bedroom terraced house for sale in Urban Way, Biggleswade, SG18 — £315,000 • 3 bed • 1 bath • 903 ft²
3 bedroom semi-detached house for sale in Hitchmead Road, Biggleswade, SG18 — £375,000 • 3 bed • 1 bath • 985 ft²






















































