CB11 4RY - Plot for sale in Langley Upper Green, Saffron Walden, CB11

View on Property Piper

Plot for sale in Langley Upper Green, Saffron Walden, CB11

Summary - The Gables, Langley Upper Green, SAFFRON WALDEN CB11 4RY

4 bed 3 bath Plot

Two planning-approved plots for contemporary detached homes in a peaceful village setting..
Full planning permission for two detached homes (Uttlesford ref UTT/22/2408/FUL)
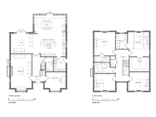
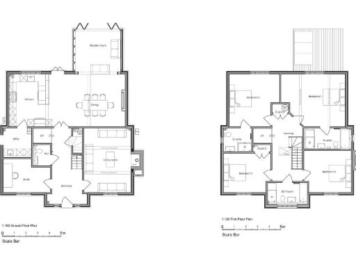
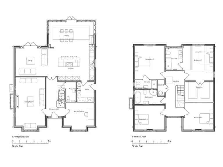
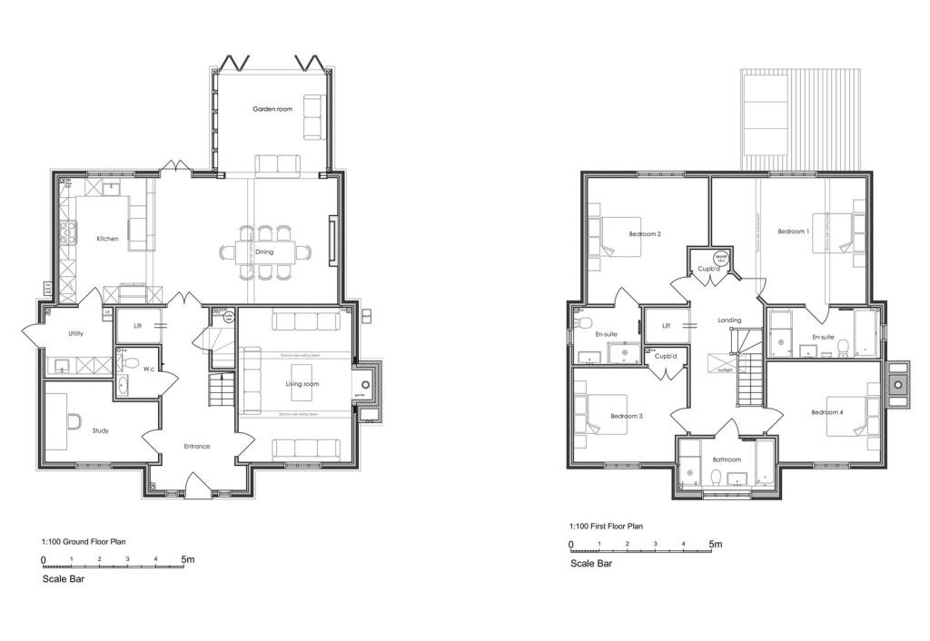
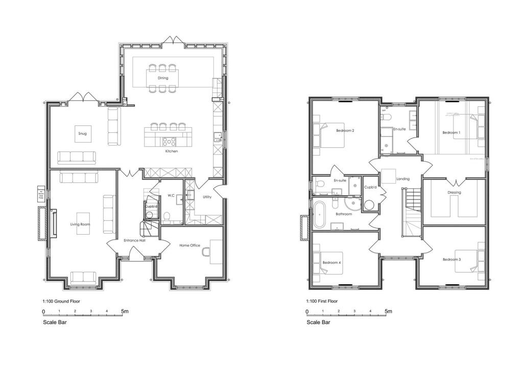
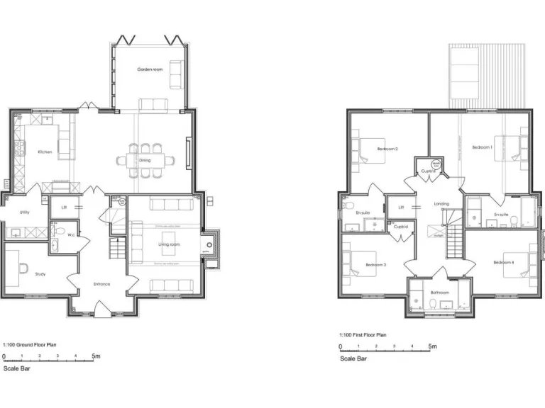
A rare double building plot in Langley Upper Green with full planning permission for two large detached homes. Both plots are designed with modern layouts — generous open-plan living, multiple en-suites, garages and private rear gardens — set off a quiet lane in a sought-after village surrounded by countryside. The planning approval (Uttlesford UTT/22/2408/FUL) includes footings already laid for one garage, preserving the consent in perpetuity.

This opportunity suits a local developer, builder or buyer seeking a bespoke new home in an affluent, low-crime village with fast broadband and good links to Saffron Walden, Bishops Stortford and the M11. Each plot provides substantial internal floor area (circa 2,497 sqft and 2,798 sqft) and space for off-street parking and garages, with the option to purchase plots together or individually (Plot 1 £435,000; Plot 2 £450,000).

Buyers should note practical points: connections for electricity, water and sewerage are to be installed and heating provision is not yet specified. The plots are sold freehold and benefit from a right of access over the main driveway; however, the approved planning consent carries conditions and restrictions which must be observed. There is an additional neighbouring plot to the rear with separate planning permission, which may influence privacy and build phasing.

Overall, the site offers clear development upside in a peaceful village setting, balanced by the usual on-site build requirements and planning conditions. For those wanting to deliver contemporary family homes close to good schools and transport links, this is a straightforward, well-located development plot with planning secured.

Property Details

Brochure Descriptions

Image Descriptions

Textual Property Features

Target Audience

AI Tags

Detected Visual Features

Nearby Schools

Nearest Bars And Restaurants

,,,,}

Nearest General Shops

,,}

Nearest Grocery shops

,,}

Nearest Supermarkets

,,}

Nearest Religious buildings

,,}

Nearest Medical buildings

,,,}

Nearest Airports

}

Nearest Leisure Facilities

,,,,}

Nearest Tourist attractions

,,}

Nearest Train stations

,,,,}

Nearest Bus stations and stops

,,,,}

Nearest Hotels

,,}

Tags

Local Market Stats

AirBnB Data

Similar Properties

Meta

High Res Images

Compatible Images

Low res Images

Thumbnails

Raw Images