Secluded family estate with barn conversion potential and fast fibre.
Grade II listed 17th‑century farmhouse with abundant period features
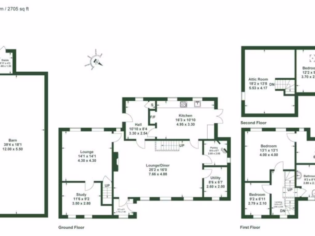
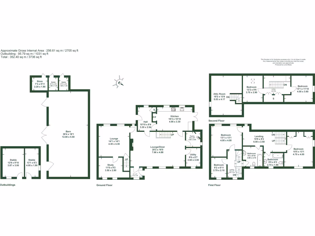
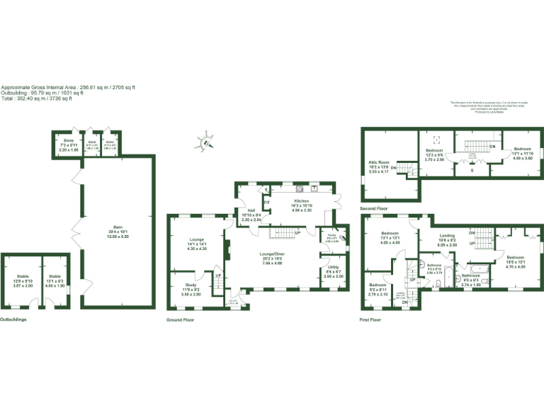
A rare 17th‑century Grade II listed farmhouse set in about 7.06 acres of gardens, orchard, woodland and pasture. The house combines strong historic character—flagged floors, mullion windows, inglenook and oak panelling—with modern essentials including double glazing (post‑2002) and hyper‑fast B4RN broadband, making it well suited to a countryside family wanting space and connectivity.
The layout provides five bedrooms across multiple floors, two house bathrooms and generous reception rooms that work for family life and entertaining. A detached stone barn with original byres offers clear conversion or reuse potential (subject to planning), while extensive grounds include kitchen gardens, a wildlife pond, and private river/beckside features — ideal for outdoor play, hobbies or small‑scale grazing.
Practical points to note: the Grade II listing brings legal restrictions and will complicate major alterations; the property currently has two bathrooms for five bedrooms; council tax is described as quite expensive; and the setting is remote with average mobile signal. Heating is provided by a boiler and bulk wood pellets, reflecting a rural fuel strategy that requires seasonal fuel management.
Positioned within the Forest of Bowland AONB, the house sits minutes from Wray village yet remains well connected to Lancaster, the M6 and nearby rail links — an appealing mix for families seeking countryside seclusion without sacrificing schools and commuter routes. Viewing is recommended to appreciate the scale, character and scope for sensitive updating or barn conversion (subject to consents).
4 bedroom detached house for sale in Knott Hill Farm, Tatham, Lancaster, LA2 8PS, LA2 — £850,000 • 4 bed • 3 bath • 4559 ft²
6 bedroom detached house for sale in Quernmore, Lancaster, Lancashire, LA2 — £750,000 • 6 bed • 2 bath • 3223 ft²
4 bedroom detached house for sale in Horns Lane, Goosnargh, Preston, PR3 — £875,000 • 4 bed • 2 bath • 1841 ft²
4 bedroom farm house for sale in Quernmore, LA2 — £1,500,000 • 4 bed • 3 bath • 4360 ft²
6 bedroom detached house for sale in Badgers Wood, Bilsborrow, Preston, Lancashire, PR3 — £800,000 • 6 bed • 2 bath • 3076 ft²
4 bedroom barn conversion for sale in Quernmore, Lancaster, LA2 — £1,500,000 • 4 bed • 3 bath • 15894 ft²






























































































