**Standout Features:**
- Grade II Listed farmhouse with traditional character
- Approximately 10 acres of land, ideal for equestrian use
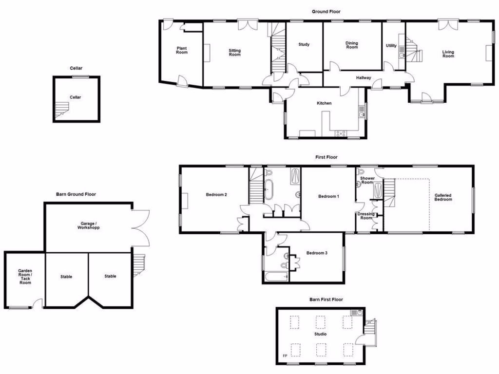
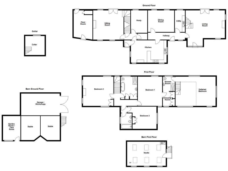
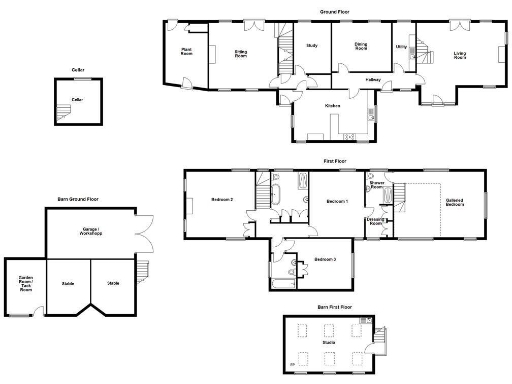
- Extensive internal space across three floors (15,894 sq ft)
- Four spacious bedrooms and three bathrooms
- Beautifully maintained gardens with a walled kitchen garden
- Two-storey barn, stables, tack room, and grazing fields
- Ample off-road parking and exceptional mobile and broadband connectivity
- Located in a tranquil rural hamlet
**Summary:**
Experience the charm of countryside living in this extraordinary Grade II listed farmhouse in the serene village of Quernmore, Lancaster. Spanning three floors and boasting an impressive 15,894 square feet, this spacious home features four versatile bedrooms and three bathrooms, making it perfect for families or those seeking room to grow. The property is set within approximately ten acres of rolling countryside, offering ample opportunities for equestrian pursuits with a professionally designed outdoor arena, stables, and grazing fields.
Inside, original features such as stone mullioned windows and exposed beams accentuate the farmhouse's character, complemented by modern finishes for comfort. The manicured gardens provide a peaceful retreat, ideal for outdoor entertaining or quiet moments by the pond. Enjoy the convenience of excellent transport links to Lancaster, while relishing the tranquility of rural living. This property offers a unique opportunity for buyers looking to embrace a lifestyle that reveres both tradition and nature—don't miss your chance to own a piece of this idyllic countryside retreat!
4 bedroom farm house for sale in Quernmore, LA2 — £1,500,000 • 4 bed • 3 bath • 4360 ft²
4 bedroom semi-detached house for sale in The Farmhouse, Town End Farm, Low Road, Halton, Lancaster, Lancashire, LA2 6NB, LA2 — £575,000 • 4 bed • 3 bath • 3050 ft²
4 bedroom barn conversion for sale in Haws House Barn, Littledale, Lancaster, LA2 — £975,000 • 4 bed • 4 bath • 2537 ft²
4 bedroom detached house for sale in Knott Hill Farm, Tatham, Lancaster, LA2 8PS, LA2 — £850,000 • 4 bed • 3 bath • 4559 ft²
4 bedroom detached house for sale in Bolton Le Sands, Carnforth, Lancashire, LA5 — £1,000,000 • 4 bed • 2 bath • 2598 ft²
3 bedroom link detached house for sale in Masongill Lowfields, Westhouse, Ingleton, LA6 3NY , LA6 — £495,000 • 3 bed • 1 bath • 2229 ft²


















































































































































































































































































































































