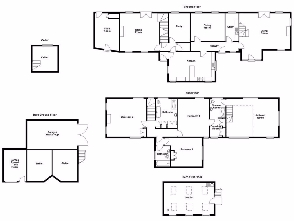
**Standout Features:**
- Stunning Grade II listed farmhouse with charming historical character.
- Approximately 10 acres of picturesque land, including grazing fields and walled garden.
- Four spacious bedrooms and three well-appointed bathrooms, accommodating family living.
- Versatile layout with multiple reception rooms for entertaining or remote work.
- Equestrian facilities including stables, tack room, and an outdoor riding arena.
- Large gardens perfect for leisure and outdoor gatherings.
- Excellent broadband speed and mobile signal, making modern living convenient.
- Rural location with low crime rates and a tranquil atmosphere.
**Summary:**
Experience the allure of countryside elegance in this extraordinary Grade II listed farmhouse, nestled within the stunning landscapes of Quernmore. With approximately 10 acres of land, this historic gem offers equestrian enthusiasts unparalleled facilities, including expansive grazing fields, a professionally constructed outdoor arena, and attractive stables. Inside, the home boasts four generous bedrooms and three elegantly styled bathrooms, surrounded by beautiful original features such as stone mullioned windows and exposed beams, complemented by modern finishes for comfort and convenience.
Perfectly suited for families or those seeking a serene retreat, the multiple reception rooms invite relaxation and connection, while a tranquil walled garden and serene pond create an outdoor oasis for leisurely afternoons. The property also lies conveniently close to Lancaster's amenities, ensuring you enjoy both rural tranquility and modern accessibility. With ample off-road parking and chain-free ownership, this property presents an exceptional opportunity in the countryside — don’t let this rare treasure slip away!
4 bedroom barn conversion for sale in Quernmore, Lancaster, LA2 — £1,500,000 • 4 bed • 3 bath • 15894 ft²
4 bedroom detached house for sale in Bolton Le Sands, Carnforth, Lancashire, LA5 — £1,000,000 • 4 bed • 2 bath • 2598 ft²
4 bedroom semi-detached house for sale in The Farmhouse, Town End Farm, Low Road, Halton, Lancaster, Lancashire, LA2 6NB, LA2 — £575,000 • 4 bed • 3 bath • 3050 ft²
6 bedroom detached house for sale in Littledale Road, Quernmore, Lancaster, LA2 — £850,000 • 6 bed • 2 bath • 2024 ft²
3 bedroom link detached house for sale in Masongill Lowfields, Westhouse, Ingleton, LA6 3NY , LA6 — £495,000 • 3 bed • 1 bath • 2229 ft²
6 bedroom detached house for sale in Quernmore, Lancaster, Lancashire, LA2 — £850,000 • 6 bed • 2 bath • 3223 ft²


















































































































































































































































































































































