Ready-to-move-in flat with private garden and extension potential near excellent transport links.
Two double bedrooms across two floors
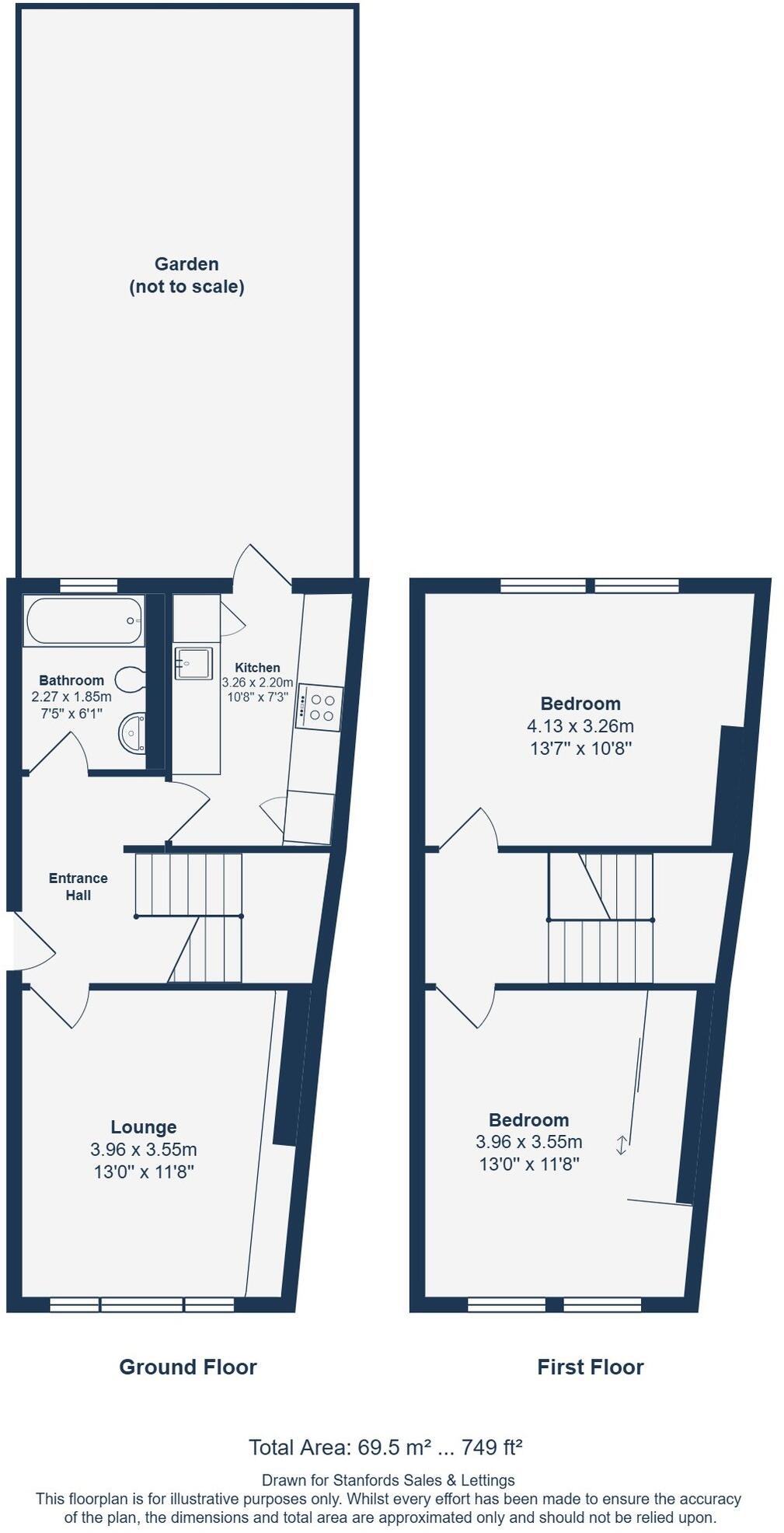
Set across the ground and first floors, this two-double-bedroom leasehold home combines light, contemporary finishes with practical outdoor space. The ground-floor reception and fitted kitchen open to a private, low-maintenance garden — ideal for outdoor dining or a small family’s play area. Planning consent obtained in 2019 for a single-storey rear extension (circa 30 sqm) offers clear scope to increase living space, subject to completing the approved works.
Internally the flat is bright and modern, with pale timber floors, built-in shelving and a neutral finish that’s ready to move into. Room sizes are small-to-average, making the layout particularly suitable for first-time buyers or commuters who prioritise location and convenience over expansive interiors. The block is managed by a resident Right to Manage company and all four flats are owner-occupied.
Practical points to note: the property is leasehold with 92 years remaining, and the area records above-average crime and higher deprivation indices — factors buyers should consider for long-term plans. Transport links are strong: Hither Green station is around 0.6 miles away with fast routes into central London and Canary Wharf, while Lewisham’s mainline and DLR services are also nearby.
Overall this is a well-positioned, ready-to-live-in home offering immediate commuter convenience and straightforward potential to personalise or extend. It will suit first-time buyers, investors seeking a lettable inner-London flat, or anyone wanting a compact, low-maintenance garden property with room to add value.
2 bedroom flat for sale in Hither Green Lane, London, SE13 6QE, SE13 — £425,000 • 2 bed • 1 bath • 482 ft²
2 bedroom flat for sale in Hither Green Lane, London, SE13 — £450,000 • 2 bed • 1 bath • 826 ft²
2 bedroom maisonette for sale in Mount Pleasant Road, London, SE13 — £475,000 • 2 bed • 1 bath • 642 ft²
2 bedroom flat for sale in Manor Lane, Hither Green, London, SE12 — £500,000 • 2 bed • 1 bath • 849 ft²
2 bedroom ground floor flat for sale in Eastdown Park SE13 5HU, SE13 — £400,000 • 2 bed • 1 bath • 635 ft²
2 bedroom flat for sale in Eastdown Park, London, SE13 — £425,000 • 2 bed • 1 bath • 692 ft²






















































