Elevated views, boating access and generous living across two floors.
Integral boathouse and private sun deck with direct river access
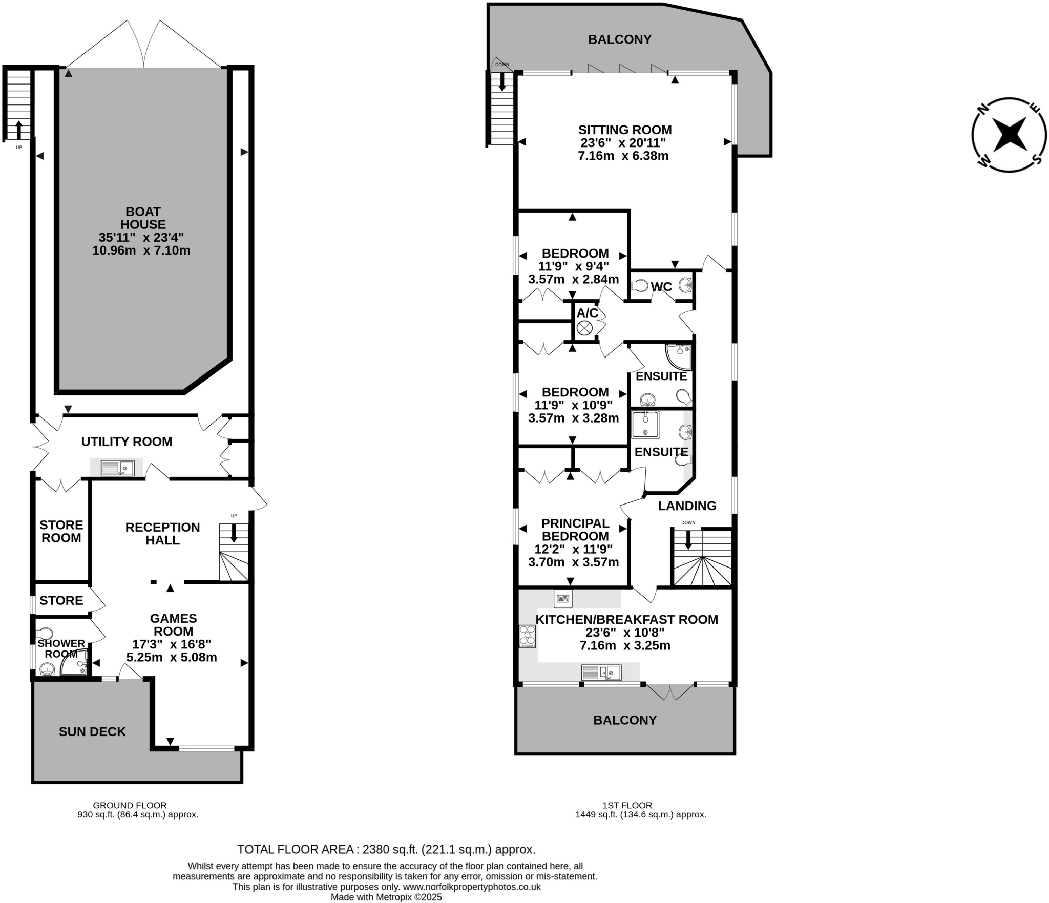
Set on a private lane in Horning, this striking modern waterside home offers an elevated living experience with direct river access and an integral boat house. The first-floor sitting room and kitchen both open to balconies with extensive views over the river, while the sun deck and boathouse make launching kayaks or mooring a boat effortless. The property is well suited to family life or a stylish second home, with three double bedrooms and three shower rooms arranged across two floors.
Internally the house feels light and contemporary, with large glazed windows, a separate games room/reception and a practical ground-floor utility and store room. The generous gravel driveway and garage provide plenty of parking for visitors, and the low-maintenance garden is fenced for privacy. At around 2,380 sq.ft the accommodation is roomy and versatile, offering good scope for flexible living or holiday-let potential given its riverside location within The Broads.
Buyers should note the property sits in a high flood-risk zone; practical implications include flood resilience measures, insurance costs and ongoing maintenance of waterfront fittings. The energy rating is E and the property uses a water-source heat pump with electric backup, so buyers should consider running costs and potential upgrades to improve efficiency. Constructed c.1996–2002 with timber-frame cladding, the house presents as modern but may require targeted maintenance typical of waterside buildings.
Overall this is a rare modern detached riverside home that combines boating convenience, elevated views and generous living space. It will particularly suit families who want a tranquil village setting with easy water access, or buyers seeking a lifestyle property in one of Broadland’s most desirable locations — provided they accept the realities of waterfront ownership and flood-risk responsibilities.
3 bedroom detached house for sale in Barton Turf, NR12 — £699,950 • 3 bed • 2 bath • 1548 ft²
3 bedroom detached house for sale in Lower Street, Horning, Norwich, Norfolk, NR12 — £475,000 • 3 bed • 2 bath • 1538 ft²
4 bedroom detached house for sale in Horning, NR12 — £750,000 • 4 bed • 3 bath • 1893 ft²
3 bedroom detached house for sale in Marsh Road, Hoveton, NR12 — £700,000 • 3 bed • 2 bath • 4009 ft²
5 bedroom detached house for sale in Hoveton, NR12 — £500,000 • 5 bed • 3 bath • 1572 ft²
1 bedroom detached bungalow for sale in Bureside Estate, Crabbetts Marsh, Horning, NR12 — £410,000 • 1 bed • 1 bath • 978 ft²






























































































































