DL11 7JL - Plot for sale in Plot 5, Whashton Farm Development, Richmon…

View on Property Piper

Plot for sale in Plot 5, Whashton Farm Development, Richmond, DL11

Summary - Plot 5, Whashton Farm Development, Richmond DL11 7JL

4 bed 4 bath Plot

Permitted-build 4-bed plot with garage, generous garden and far-reaching rural views..
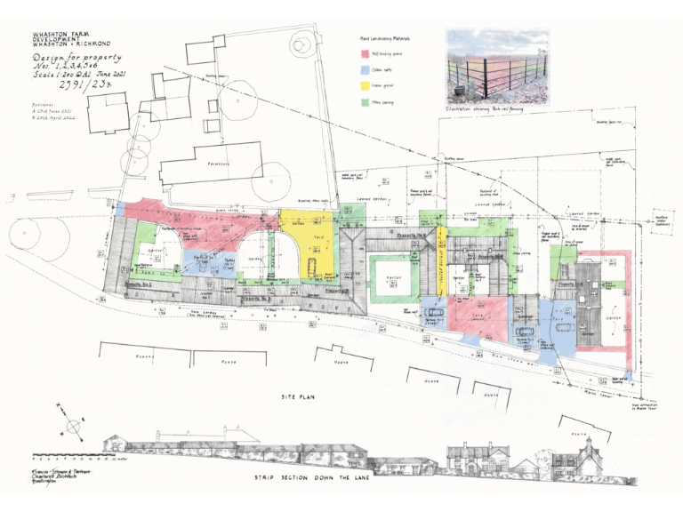
- Full planning permission for a 4-bed house (2,615 sqft) with garage
- Elevated plot with extensive rural and far-reaching countryside views
- Very large garden footprint and private driveway potential
- Mains water, electricity and foul drainage available; connections to be confirmed
- Site partially cleared but contains rubble and demolition remnants
- Rural hamlet location; Richmond 4.3 miles, A66 2.5 miles
- Low local crime; fast broadband reported, average mobile signal
- Suitable for family home or permitted-build investment opportunity
Plot 5 is a rare chance to build a substantial four-bedroom family home (2,615 sqft) on the edge of Whashton with full planning permission (refs 22/00013/LBC and 22/00012/FULL). The design allows two reception rooms, a study and an attached garage, and the elevated plot enjoys far-reaching views across rolling agricultural countryside.

The site is largely cleared and offers a very large garden footprint and private driveway potential. Mains water, electricity and foul drainage are recorded as available, though buyers must confirm final connection arrangements and costs. The adjacent plot to the east is sold, positioning Plot 5 within an emerging small rural development.

Practical considerations: the plot currently contains rubble and remnants from previous structures, so ground clearance and site preparation will be required before construction. The location is rural and relatively isolated—Richmond is 4.3 miles away and the A66 is 2.5 miles, so this suits buyers seeking countryside living rather than urban convenience.

This opportunity will appeal to families wanting a spacious, traditionally styled new build in a hamlet setting, or investors/developers seeking a permitted-build plot with scenic outlooks. Access to good local schools, nearby farm shop and low local crime further strengthen the site’s appeal.

Property Details

Brochure Descriptions

Image Descriptions

Floorplan Description

Rooms

Textual Property Features

Target Audience

AI Tags

Detected Visual Features

Nearby Schools

Nearest Bars And Restaurants

,,,,}

Nearest General Shops

,,}

Nearest Grocery shops

,,}

Nearest Supermarkets

,,}

Nearest Religious buildings

,,}

Nearest Medical buildings

,,,}

Nearest Leisure Facilities

,,,,}

Nearest Tourist attractions

,,}

Nearest Train stations

,,,,}

Nearest Bus stations and stops

,,,,}

Nearest Hotels

,,}

Tags

Local Market Stats

AirBnB Data

Similar Properties

Meta

High Res Images

Compatible Images

Low res Images

Thumbnails

Raw Images

High Res Floorplan Images

Compatible Floorplan Images

Low res Floorplan Images

FloorplanImages Thumbnail

Raw Floorplan Images