**Standout Features:**
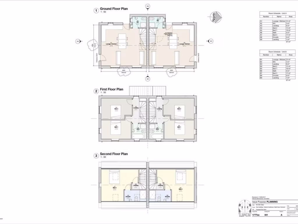
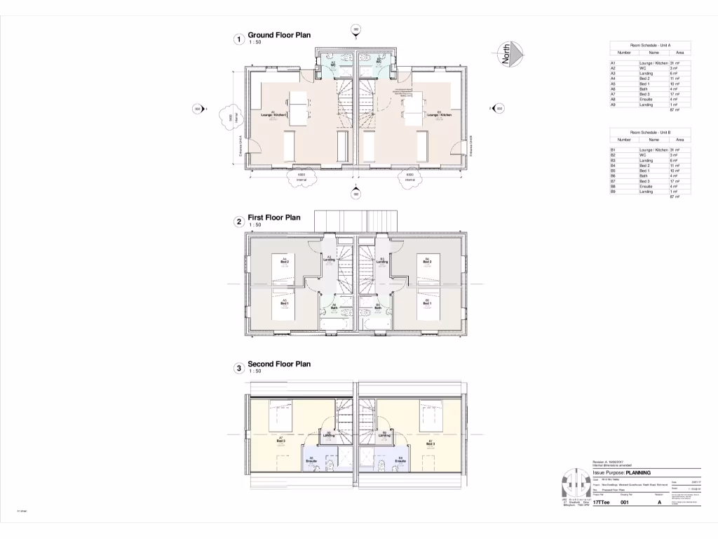
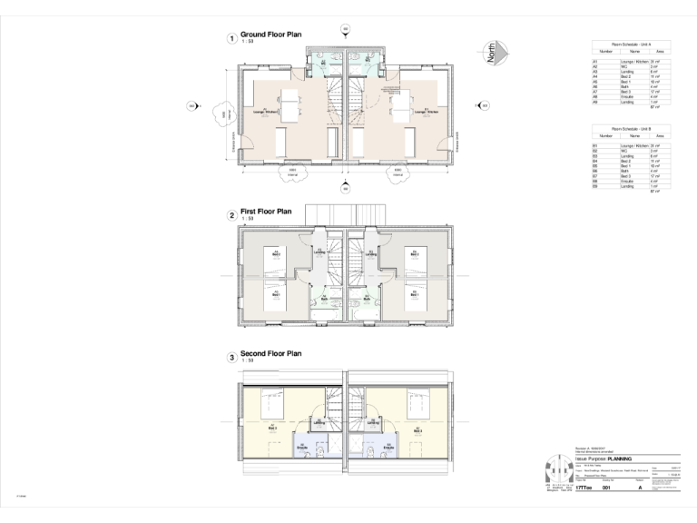
- Rare building plot with planning permission for a pair of 3-bedroom semi-detached houses.
- Traditional architecture with substantial parking—two spaces per property.
- Freehold tenure, chain-free.
- Mains services nearby.
- Efficient layout offering 87 sq m of accommodation per house.
**Potential Concerns:**
- Average-sized plot with standard ceiling heights and mixed-class rating for local schools.
- Surrounded by average crime rates in a suburban area.
Discover an exceptional opportunity in Richmond! This prime building plot comes with planning permission for two traditionally styled 3-bedroom semi-detached homes, making it an attractive prospect for investors or families looking to create their dream space. Both homes are designed to maximize comfort with open-plan living areas and dedicated parking—ideal for busy lifestyles.
Strategically located near essential services and local amenities, they promise convenience while nestled in a cozy community setting. With fast broadband and off-street parking, this site is prime for development and future growth.
While the area offers average school ratings and crime statistics, its suburban charm and accessibility make it a viable family-friendly location. Don’t miss out on this rare chance to build two homes in a sought-after area—creation possibilities are just a decision away! Secure your future investment today, as opportunities like this don’t last long!
Plot for sale in Richmond, DL10 — £230,000 • 1 bed • 1 bath • 2432 ft²
Plot for sale in Moor Lane, Newsham, Richmond, DL11 — £200,000 • 1 bed • 1 bath • 2270 ft²
4 bedroom detached house for sale in Quakers Lane, Richmond, DL10 — £700,000 • 4 bed • 2 bath • 1937 ft²
Land for sale in Building Plot, Dyson Lane, Newsham, Richmond, DL11 — £185,000 • 4 bed • 2 bath
Plot for sale in Plot 5, Whashton Farm Development, Richmond, DL11 — £330,000 • 4 bed • 4 bath • 2615 ft²
5 bedroom semi-detached house for sale in White Friars Gardens, Richmond, DL10 — £375,000 • 5 bed • 2 bath • 1795 ft²






























