DL10 6AP - Plot for sale in Ellerton On Swale, DL10

View on Property Piper

Plot for sale in Ellerton On Swale, DL10

Summary - ROSEMARY COTTAGE ELLERTON UPON SWALE RICHMOND DL10 6AP

3 bed 2 bath Plot

Build a single‑storey home with large gardens and planning permission in peaceful Ellerton.
0.5 acre very large plot with open fields to rear
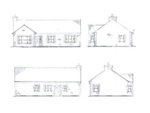
A rare half-acre building plot in tranquil Ellerton-on-Swale with full planning permission for a detached single‑storey bungalow. Foundations have been started and pre‑commencement conditions were discharged and confirmed as commenced by Richmondshire Council, so a buyer can progress build works without reapplying for permission.

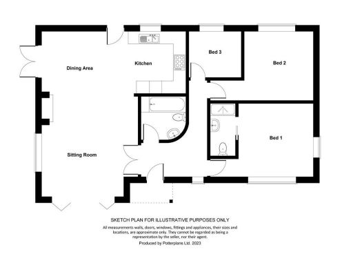
This site suits buyers seeking an easy-living, single‑level home with very large gardens for vegetables, fruit and small‑scale keeping of poultry. The proposed layout shows generous living space, three bedrooms and two bathrooms, and open fields to the rear offer privacy and attractive rural views.

Practical points are clear: mains water and electricity are available nearby but there is no mains drainage; broadband speeds are slow and mobile signal is average. There is a 50% overage (claw‑back) for 20 years applying only to any additional dwellings on the land. The plot also benefits from rights of way for access which must be retained.

This property will particularly appeal to downsizers or families wanting a bespoke single‑level home in a quiet hamlet, or investors able to manage the build. Be aware of medium flood risk on the site and the infrastructure work required to connect drainage and services before occupation.

Property Details

Brochure Descriptions

Image Descriptions

Floorplan Description

Rooms

Textual Property Features

Target Audience

AI Tags

Detected Visual Features

Nearby Schools

Nearest Bars And Restaurants

,,,,}

Nearest General Shops

,,}

Nearest Grocery shops

,,}

Nearest Supermarkets

,,}

Nearest Religious buildings

,,}

Nearest Medical buildings

,,,}

Nearest Leisure Facilities

,,,,}

Nearest Tourist attractions

,,}

Nearest Train stations

,,,,}

Nearest Bus stations and stops

,,,,}

Nearest Hotels

,,}

Tags

Local Market Stats

Similar Properties

Meta

High Res Images

Compatible Images

Low res Images

Thumbnails

Raw Images

High Res Floorplan Images

Compatible Floorplan Images

Low res Floorplan Images

FloorplanImages Thumbnail

Raw Floorplan Images