BB9 6SH - Light industrial facility for sale in Unit 3A, Pendleside,…

View on Property Piper

Light industrial facility for sale in Unit 3A, Pendleside, Lomeshaye Industrial Estate, Nelson, BB9 6SH, BB9

Summary - UNIT 3A, PENDLESIDE BB9 6SH

1 bed 1 bath Light Industrial

**Standout Features:**
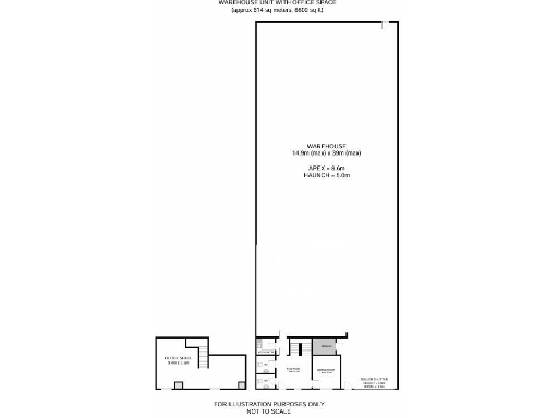
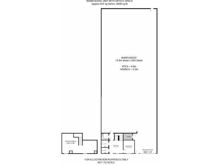
- Modern industrial unit spanning over 6,600 sq ft
- Located on the highly popular Lomeshaye Industrial Estate, with excellent M65 motorway access
- Mezzanine office space, ground floor office, and tiled reception
- Eaves height of 5 metres, apex at 8.5 metres; ideal for various commercial uses
- Parking for 6-8 vehicles, capable of accommodating HGV loading
- Equipped with three-phase electricity, gas heating, and LED lighting
- Very low crime area with excellent mobile signal

This impressive end-parade industrial unit offers a tremendous investment opportunity, perfect for business owners or investors seeking a versatile space in an established industrial estate. The property features spacious open-plan warehouse accommodation, enhanced by modern amenities that include LED lighting and ample three-phase electricity. With strong potential for various uses—be it warehouse & distribution, trade counter, or similar applications—the unit’s configuration supports operational flexibility.

External features include a sizable communal yard, facilitating loading for HGVs, and dedicated parking for multiple vehicles, ensuring ease of access. The location at junction 12 of the M65 means businesses nearby such as Daisy Communications and Wellocks contribute to a thriving commercial environment. However, it's essential to note that while the broadband speeds are currently slow, the overall affluence of the surrounding area and its vibrant business community make this property a sound choice. With a competitive price point of £650,000, properties like this are in high demand—don't miss out on the chance to secure this modern and expansive facility.

Property Details

Brochure Descriptions

Image Descriptions

Floorplan Description

Rooms

Textual Property Features

Detected Visual Features

Nearby Schools

Nearest Bars And Restaurants

,,,,}

Nearest General Shops

,,}

Nearest Grocery shops

,,}

Nearest Supermarkets

,,}

Nearest Religious buildings

,,}

Nearest Medical buildings

,,,}

Nearest Leisure Facilities

,,,,}

Nearest Tourist attractions

,,}

Nearest Train stations

,,,,}

Nearest Bus stations and stops

,,,,}

Nearest Hotels

,,}

Tags

Local Market Stats

Similar Properties

Meta

High Res Images

Compatible Images

Low res Images

Thumbnails

Raw Images

High Res Floorplan Images

Compatible Floorplan Images

Low res Floorplan Images

FloorplanImages Thumbnail

Raw Floorplan Images