**Standout Features:**
- **Location**: Situated in the coveted village of Tealby
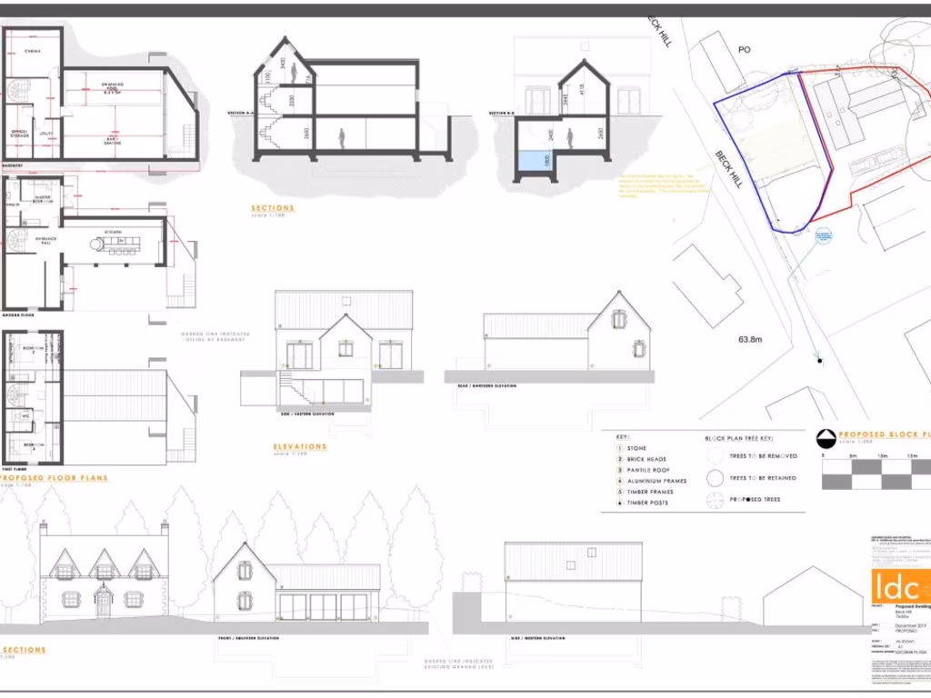
- **Planning Permission**: Approved for an exceptional home (Planning number: 143877)
- **Two Build Options**:
- Option 1: A two-story, 3-bedroom home emphasizing modern design and budget-friendliness.
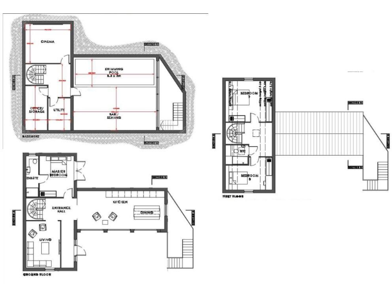
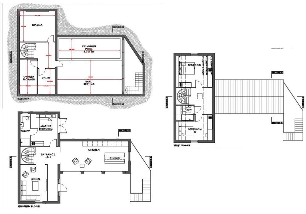
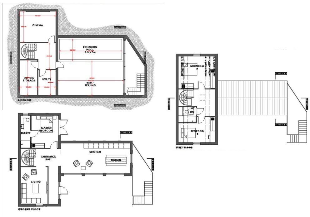
- Option 2: A luxury build featuring a basement with a pool, gym, cinema, and entertaining areas.
- **Plot Size**: Large with ample outdoor space
- **Utilities**: Mains gas heating, double glazing, and fast broadband available
This exclusive building plot at Beck Hill, Tealby presents an extraordinary opportunity for both families and investors to design and create a customized residence that harmonizes with the charming countryside setting. The approved plans offer flexibility with two distinct options: a stylish yet practical 3-bedroom home ideal for first-time buyers or a lavish setup for those seeking luxury, including a basement entertainment hub.
The location's tranquil village atmosphere is complemented by strong local schools, various amenities, and a supportive community vibe. Moreover, the average crime rate and excellent mobile signal assure peace of mind and connectivity. Given the rarity of such a plot in this prestigious area, keen buyers should act quickly to seize this promising prospect tailored for modern living, with a building quote of £165,000 already in place for the construction of the preferred design.
Plot for sale in Folly Hill, Thornton Road, North Owersby, LN8 — £125,000 • 4 bed • 3 bath • 2007 ft²
Plot for sale in Low Road, Hatcliffe, Grimsby, N. E. Lincolnshire, DN37 — £295,000 • 3 bed • 3 bath
Plot for sale in Kings Chase, Barnoldby-Le-Beck, DN37 — £230,000 • 1 bed • 1 bath
Plot for sale in Folly, Hill, Thornton Road, North Owersby, Market Rasen, LN8 — £125,000 • 4 bed • 3 bath • 2008 ft²
Plot for sale in Folly Hill, Thornton Road, North Owersby, LN8 — £195,000 • 5 bed • 4 bath • 1999 ft²
Land for sale in School Lane, Rothwell, LN7 — £80,000 • 1 bed • 1 bath • 5227 ft²


















