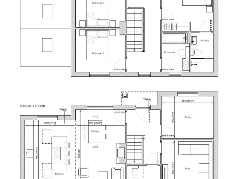
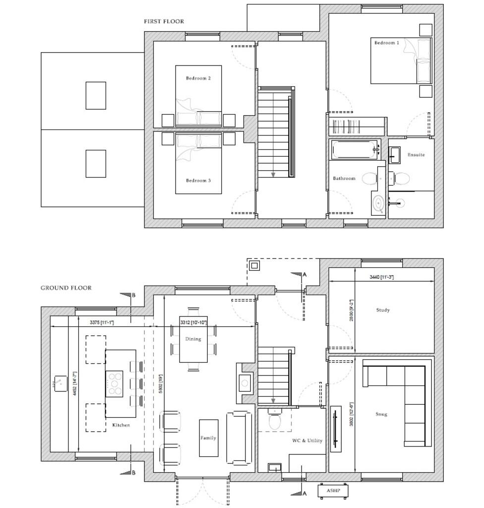
**Standout Features:**
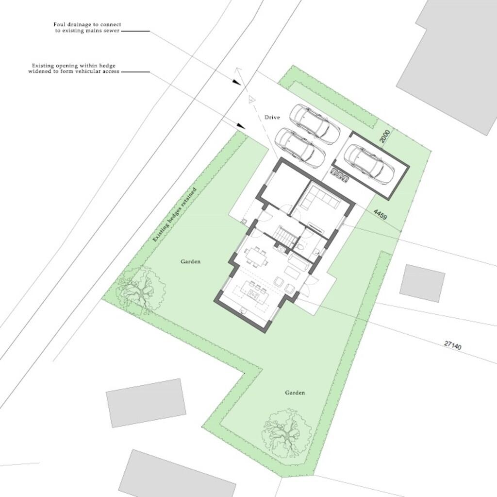
- Generous building plot with full planning permission for a three/four-bedroom home
- Prime location in picturesque Rothwell, Lincolnshire Wolds, an Area of Outstanding Natural Beauty
- Traditional design with modern touches, including solar panels and air source heat pump
- Large plot size of approximately 5,227 square feet with ample gardens and off-street parking
- Quiet, elevated position along a no-through road, offering attractive countryside views
- Close proximity to local amenities in neighboring Caistor, including respected schools and a local pub
- Chain-free sale; VAT payable on the sale price
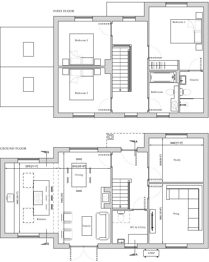
This exceptional building plot in the charming village of Rothwell presents a rare opportunity for those looking to create their dream home in the idyllic Lincolnshire Wolds. With plans for a sophisticated detached house that encompasses approximately 1,375 square feet of versatile living space, this property is ideal for families seeking comfort and modern convenience within a tranquil rural setting.
Easy access to local amenities, including popular schools and leisure facilities, enhances this plot's appeal for families and investors alike. Picture yourself enjoying peaceful village life, with stunning countryside views right from your doorstep. However, potential buyers should note the additional VAT on the sale price and ensure they are prepared for this consideration. Act quickly, as opportunities like this, particularly in such a desirable location, are highly sought after and won't last long!
Plot for sale in Folly Hill, Thornton Road, North Owersby, LN8 — £125,000 • 4 bed • 3 bath • 2007 ft²
4 bedroom detached house for sale in Home Farm, Beckside, Rothwell, LN7 — £795,000 • 4 bed • 2 bath • 2300 ft²
Plot for sale in Folly, Hill, Thornton Road, North Owersby, Market Rasen, LN8 — £125,000 • 4 bed • 3 bath • 2008 ft²
Plot for sale in Low Road, Hatcliffe, Grimsby, N. E. Lincolnshire, DN37 — £295,000 • 3 bed • 3 bath
Land for sale in Building Plot, North Owersby, Market Rasen, LN8 — £75,000 • 1 bed • 1 bath • 15682 ft²
Land for sale in Building Plot, Linwood Road. Market Rasen., LN8 — £115,000 • 1 bed • 1 bath • 6534 ft²






















































