Large central plot with former shop and outbuildings — high potential, subject to planning..
- 0.208 acre town-centre plot with rear vehicular access
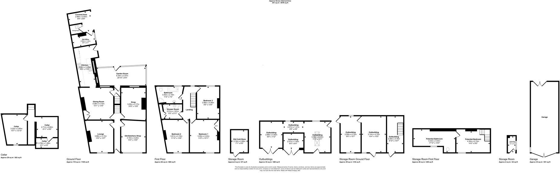
A rare, town-centre development plot combining a three-bedroom Victorian terrace and a former butchers shop with extensive outbuildings and rear vehicular access. The site extends to approximately 0.208 acres (840.86 m²), unusually large for a central Loughborough location and suited to a small terrace, apartments or mixed-use redevelopment, subject to planning and approvals.
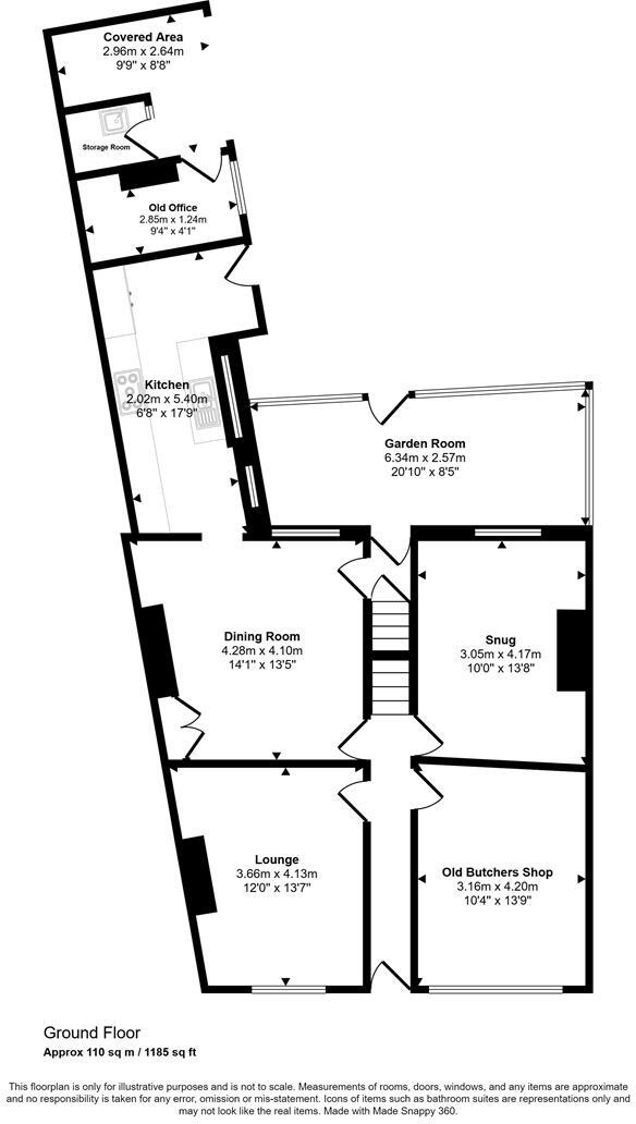
The existing property retains period features (high ceilings, original shopfront, fireplaces) and includes substantial yard, garden, cellar and a large garage/former cold store. Vehicular access is provided via Pinfold Jetty (a byway open to all traffic), improving practical redevelopment and servicing options. Broadband and mobile signals are strong and key local amenities, schools and the train station are within easy walking distance.
Material considerations are clear: the site sits in a very deprived area with a very high recorded crime level and is in a Selective Licensing zone (Charnwood Borough Council) — purchasers must factor in regulatory and management obligations. Many outbuildings are former livestock/processing structures; their condition, services and suitability for conversion are unknown and will affect costs. The main house is a late-Victorian solid-brick build with no known cavity insulation and typical period maintenance needs.
This opportunity will suit developers, investors or builders able to carry out due diligence, secure planning permission and manage refurbishment or demolition/rebuild. The combination of prominent street frontage, large plot and rear access gives flexibility, but realistic budgets should include structural surveys, asbestos checks, renovation works and potential licensing or remediation costs.
3 bedroom terraced house for sale in Development Opportunity, LE11 — £400,000 • 3 bed • 1 bath • 1583 ft²
Land for sale in Development Site - 5 Granby Street, Loughborough LE11 3DU, LE11 — £350,000 • 1 bed • 1 bath • 2583 ft²
Commercial development for sale in Investment Portfolio, Woodgate, Loughborough, LE11 — £850,000 • 1 bed • 1 bath • 5227 ft²
Commercial development for sale in The Cottage, Woodgate, Loughborough, LE11 — £210,000 • 1 bed • 1 bath • 1217 ft²
Land for sale in Mountfields Drive, Loughborough, LE11 — £250,000 • 1 bed • 1 bath • 7841 ft²
Residential development for sale in Charnwood House, Forest Road, Loughborough, LE11 — £600,000 • 1 bed • 1 bath • 2739 ft²


















































































































































