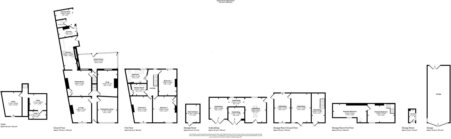
Large freehold terrace with former shop and outbuildings — major redevelopment potential.
0.2 acre town-centre plot with vehicular rear access
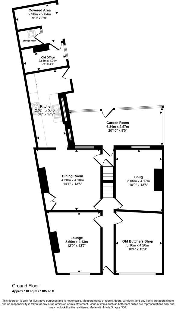
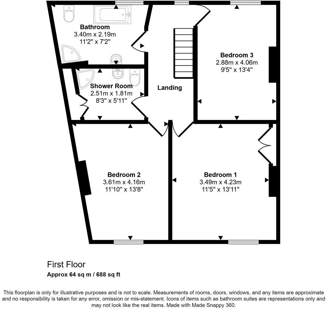
A rare town-centre development plot set on approximately 0.2 acres, this mid-terrace property combines a three-bedroom house, a former butchers shop and extensive outbuildings accessed from a rear byway. The freehold site benefits from vehicular access, generous rear garden, off-street hardstanding and a large garage/cold store — physical assets that suit conversion, subdivision or mixed-use redevelopment (all subject to planning). The property is offered chain-free and spans about 1,583 sq ft, providing a substantial footprint in a highly accessible central location.
The building is traditional solid-brick construction (pre-1900) with double glazing and gas central heating, but it requires comprehensive renovation. There are original shop fittings and multiple former livestock/processing outbuildings which will need demolition, repair or full repurposing. Buyers should budget for internal refurbishment, possible insulation upgrades, and to resolve any building regulation and planning consents for change of use, subdivision or new-build on the plot.
Material constraints are factual and important: the area is classed as very deprived with very high recorded crime levels, and the property falls within a selective licensing area under local authority rules. Prospective purchasers must carry out their own due diligence regarding highway adoption, byway access rights, planning feasibility and licensing responsibilities. The nearest rail and town-centre amenities are within a short walk, and the nearby university expands rental and mixed-use demand.
This opportunity will suit experienced developers, investor-buyers or an owner-occupier seeking a substantial renovation with commercial potential. The site’s size, central location and existing outbuildings create strong redevelopment upside for those who can navigate planning, licensing and refurbishment costs.
3 bedroom property for sale in Development Opportunity, LE11 — £400,000 • 3 bed • 1 bath • 1583 ft²
Land for sale in Development Site - 5 Granby Street, Loughborough LE11 3DU, LE11 — £350,000 • 1 bed • 1 bath • 2583 ft²
Residential development for sale in Charnwood House, Forest Road, Loughborough, LE11 — £600,000 • 1 bed • 1 bath • 2739 ft²
Land for sale in Mountfields Drive, Loughborough, LE11 — £250,000 • 1 bed • 1 bath • 7841 ft²
Commercial development for sale in The Cottage, Woodgate, Loughborough, LE11 — £210,000 • 1 bed • 1 bath • 1217 ft²
Commercial development for sale in Investment Portfolio, Woodgate, Loughborough, LE11 — £850,000 • 1 bed • 1 bath • 5227 ft²


























































































































































