**Standout Features:**
- Substantial Freehold property with redevelopment potential (Subject to Planning Permission)
- Centrally located in Loughborough, near the town's amenities
- Currently let until 2029 to Latham and Co solicitors with a passing rent of £20,000 per annum, increasing to £25,000 in 2026
- Large car park at the rear with approximately 16 spaces
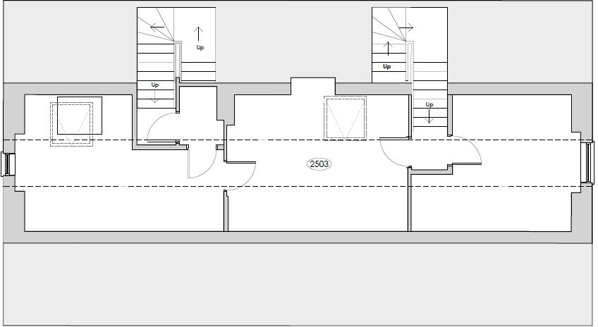
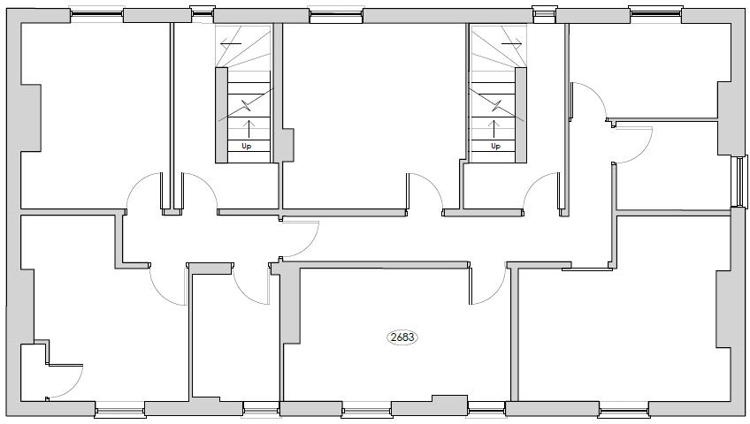
- Offers a sizeable 2,739.81 sq. ft. of office space across three floors
**Summary:**
Charnwood House presents an exceptional investment opportunity located on Forest Road, Loughborough. This spacious semi-detached Victorian-style office building offers potential for both residential and commercial redevelopment (STPP), with indications of support for converting the property into five flats. The property, currently leased to a solicitors firm until 2029, generates steady rental income with a favorable increase scheduled.
While the building requires a program of updates and refurbishment to maximize its potential, it stands with significant charm, featuring period-specific design elements and ample off-street parking. Situated centrally, you’ll benefit from excellent connectivity and a vibrant surrounding area, ideal for attracting renters or creating desirable family homes.
Don’t miss out on this unique chance to own a property with substantial redevelopment potential in a thriving town—properties like this, with both rental income and renovation potential, are in high demand!
Commercial development for sale in Investment Portfolio, Woodgate, Loughborough, LE11 — £850,000 • 1 bed • 1 bath • 5227 ft²
Commercial property for sale in Market Street, Loughborough, LE11 — £300,000 • 1 bed • 1 bath • 1698 ft²
Commercial development for sale in Investment Portfolio, Woodgate, Loughborough, LE11 — £1,060,000 • 1 bed • 1 bath • 5227 ft²
8 bedroom semi-detached house for sale in Leicester Road, Loughborough, LE11 — £435,000 • 8 bed • 3 bath • 3500 ft²
Commercial development for sale in The Cottage, Woodgate, Loughborough, LE11 — £210,000 • 1 bed • 1 bath • 1217 ft²
3 bedroom terraced house for sale in Development Opportunity, LE11 — £400,000 • 3 bed • 1 bath • 1583 ft²






































