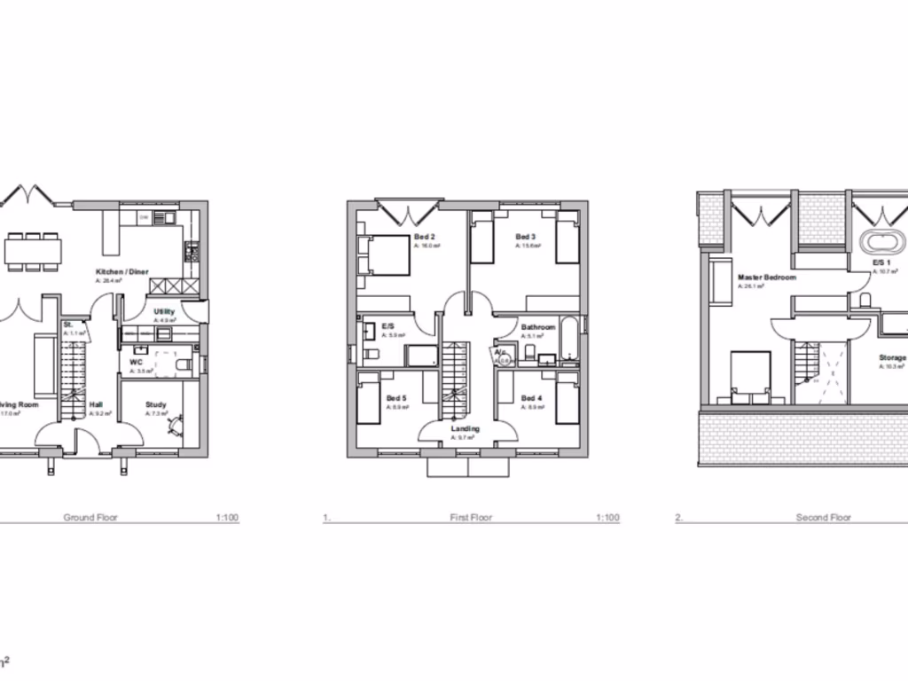
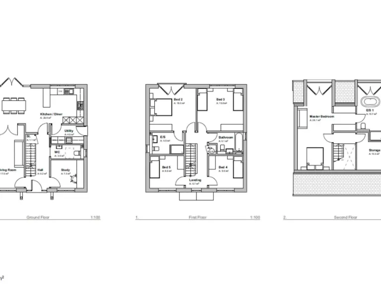
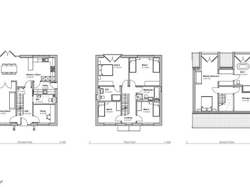
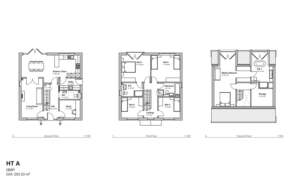
Full permission for a five-bedroom detached home with large garden and field views, ideal for developers.
Full planning permission granted for a detached five-bedroom house
Large plot with private rear garden and countryside views
Off-street parking for several vehicles and single garage included
Services not connected; utilities must be laid via designated access route
Part of rear land lies within Green Belt; use restrictions apply
Tenure currently unknown—must be verified by buyer
Fast broadband and excellent mobile signal; very low local crime
Semi-rural hamlet location with easy motorway links and local schools
This large semi-rural plot (Plot 2) comes with full planning permission for a detached five-bedroom house, making it a straightforward option for developers or experienced self-builders. The site backs onto open fields, offering attractive countryside views and a generous private rear garden. Off-street parking and a single garage are included in the proposals.
Practical considerations are clear: services are not yet connected and will need to be laid through the designated access route, as shown on the site plan. Part of the land to the rear sits within Green Belt designation and has historically been used as garden space; any alternative use would be constrained. Tenure is unknown and should be confirmed before exchange.
The plot sits in a quiet hamlet-like setting just outside Bromsgrove, with fast broadband, excellent mobile signal and very low local crime. Nearby state and independent schools, canal walks and good motorway links (M5/M42) make the location well connected while retaining rural character. This is best suited to developers, speculative builders or buyers prepared to manage a self-build project.
Land for sale in Land, Foley Gardens, Stoke Prior, Bromsgrove, B60 4LD, B60 — £440,000 • 5 bed • 3 bath • 711 ft²
Land for sale in Timberhonger Lane, Upton Warren, Bromsgrove, Worcestershire, B61 — £275,000 • 1 bed • 1 bath • 4900 ft²
Plot for sale in Haye Lane, Mappleborough Green, B80 — £300,000 • 3 bed • 3 bath • 1808 ft²
Land for sale in Building Plot 3 Wescoe Newland Lane Newland Droitwich, Worcestershire, WR9 7JH, WR9 — £275,000 • 1 bed • 1 bath • 8276 ft²
Plot for sale in Stourbridge Road, Bromsgrove, Worcestershire, B61 — £90,000 • 2 bed • 1 bath
Plot for sale in Haye Lane, Mappleborough Green, B80 — £300,000 • 3 bed • 3 bath • 1808 ft²






















