Build a bespoke family home on a secluded large plot with planning approved.
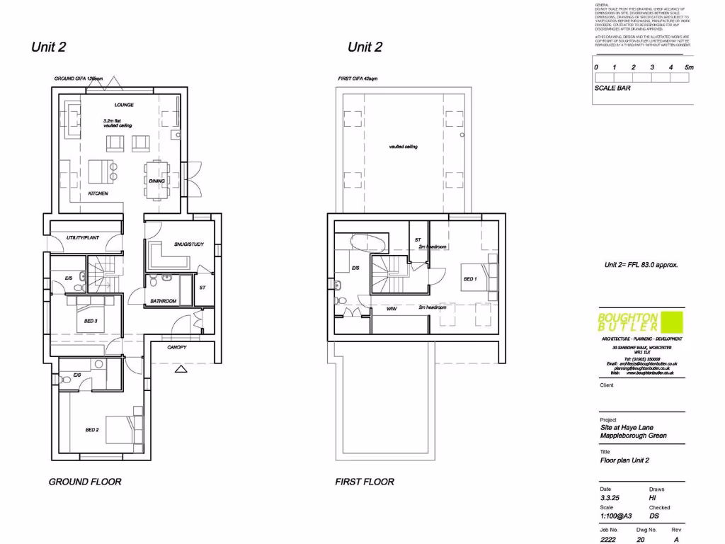
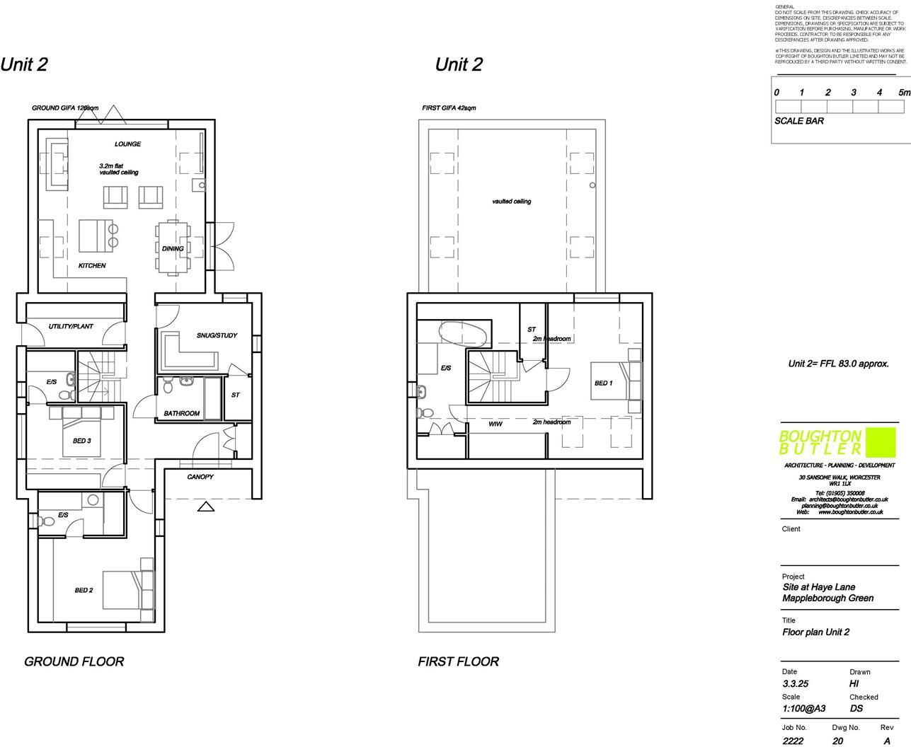
Full planning permission for a 3-bed, 3 en-suite detached home (ref 24/03092/FUL)
A rare countryside plot in Mappleborough Green with full planning permission for a high-spec three-bedroom detached home. The approved scheme delivers just under 1,800 sq ft of accommodation with three en-suite bedrooms, private garden and garage — a strong starting point for a bespoke family home or an owner-builder project.
The site sits behind private gates on an approximate 0.2-acre plot with mature boundary screening and undulating rural views. Full planning permission (ref: 24/03092/FUL) is in place, removing a major early-stage risk and allowing construction to commence subject to building regs and local conditions. The plot is freehold and offers space for landscaping, parking and a garage as shown in the approved drawings.
Buyers should note material practical considerations: broadband speeds are reported as slow and mobile signal is only average, which may affect remote working. Crime in the immediate area is above average; security and site-management measures will be important during construction and thereafter. As a serviced plot with planning but without a completed dwelling, the purchase will require time, budget and project management to deliver the permitted luxury home.
This opportunity suits buyers seeking a secluded family residence in a prosperous rural setting, or experienced developers/homebuilders wanting a near-ready plot with consent. With strong local schools and countryside amenities nearby, the site offers good long-term appeal where buyers are prepared to manage build costs and on-site security.
Plot for sale in Haye Lane, Mappleborough Green, B80 — £300,000 • 3 bed • 3 bath • 1808 ft²
Plot for sale in Foxlydiate Lane, Redditch B97 — £325,000 • 4 bed • 3 bath • 2080 ft²
Land for sale in Timberhonger Lane, Upton Warren, Bromsgrove, Worcestershire, B61 — £275,000 • 1 bed • 1 bath • 4900 ft²
Land for sale in Binton, Stratford-Upon-Avon, CV37 — £650,000 • 4 bed • 4 bath • 4500 ft²
Commercial development for sale in Land To The Rear Of Mayfield, Atch Lench Road, Church Lench, Evesham, Worcestershire , WR11 — POA • 1 bed • 1 bath
Land for sale in Land, Foley Gardens, Stoke Prior, Bromsgrove, B60 4LD, B60 — £450,000 • 5 bed • 3 bath • 711 ft²






















