Create a bespoke three‑bed luxury home in a sought‑after rural setting.
Full Planning Permission granted (ref: 24/03092/FUL)
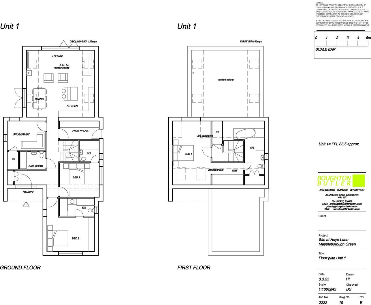
Approx. 1,808 sq.ft proposed three-bed, three en‑suite dwelling
Freehold plot with private driveway and garage parking
Countryside location with open rural views and large garden potential
Plot described as approx. 0.2 acre; verify exact boundaries and area
No recorded flood risk
Broadband speeds slow; mobile signal average — impacts home working
Local crime rates above average — consider security planning
This countryside plot on Haye Lane offers a rare chance to build a bespoke three-bedroom, three en‑suite detached home with full planning permission (ref: 24/03092/FUL). The approved design delivers just over 1,800 sq.ft of contemporary living space with large glazed rear openings, pitched roofs and a modest footprint set within generous grounds. The site is freehold and has no recorded flood risk.
The location suits families seeking rural living with access to highly rated local schools, including an Outstanding secondary and several Good primaries. The plot provides private driveway parking and a garage, with scope to create landscaped gardens and take advantage of undulating countryside views.
Buyers should note practical constraints: broadband speeds are slow and mobile signal is average, which may affect home working or streaming. Local crime rates are above average; consider this when planning security measures. Prospective purchasers should verify exact plot boundaries and overall site area prior to exchange.
Plot for sale in Haye Lane, Mappleborough Green, B80 — £300,000 • 3 bed • 3 bath • 1808 ft²
Plot for sale in Foxlydiate Lane, Redditch B97 — £325,000 • 4 bed • 3 bath • 2080 ft²
Land for sale in Binton, Stratford-Upon-Avon, CV37 — £650,000 • 4 bed • 4 bath • 4500 ft²
Land for sale in Land, Foley Gardens, Stoke Prior, Bromsgrove, B60 4LD, B60 — £450,000 • 5 bed • 3 bath • 711 ft²
Commercial development for sale in Land To The Rear Of Mayfield, Atch Lench Road, Church Lench, Evesham, Worcestershire , WR11 — POA • 1 bed • 1 bath
Land for sale in Timberhonger Lane, Upton Warren, Bromsgrove, Worcestershire, B61 — £275,000 • 1 bed • 1 bath • 4900 ft²






















