Extensive freehold estate with redevelopment potential, subject to planning constraints.
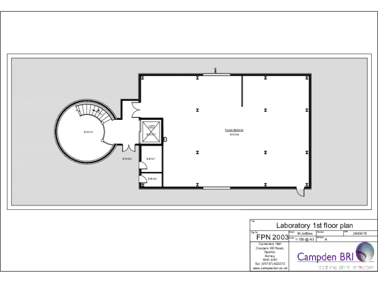
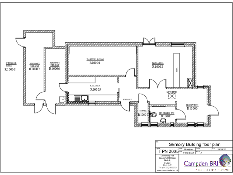
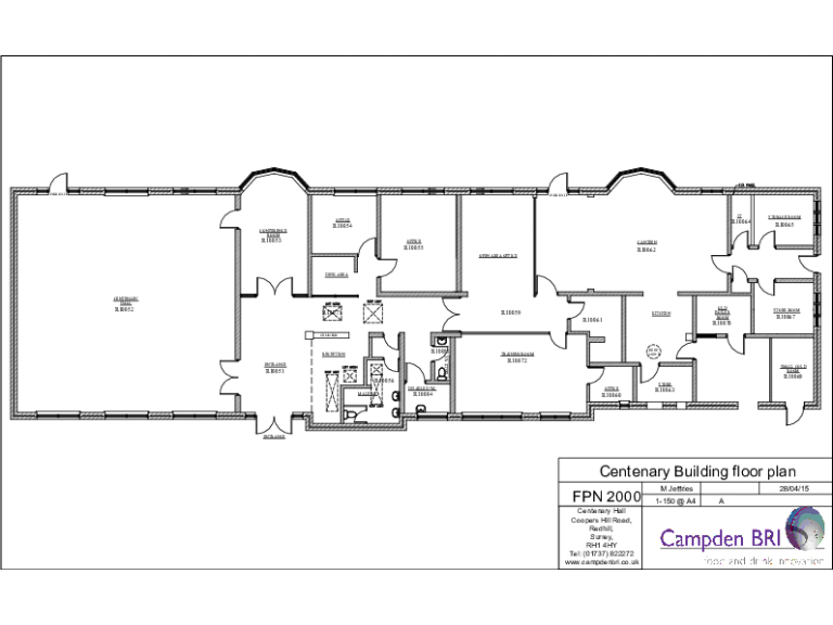
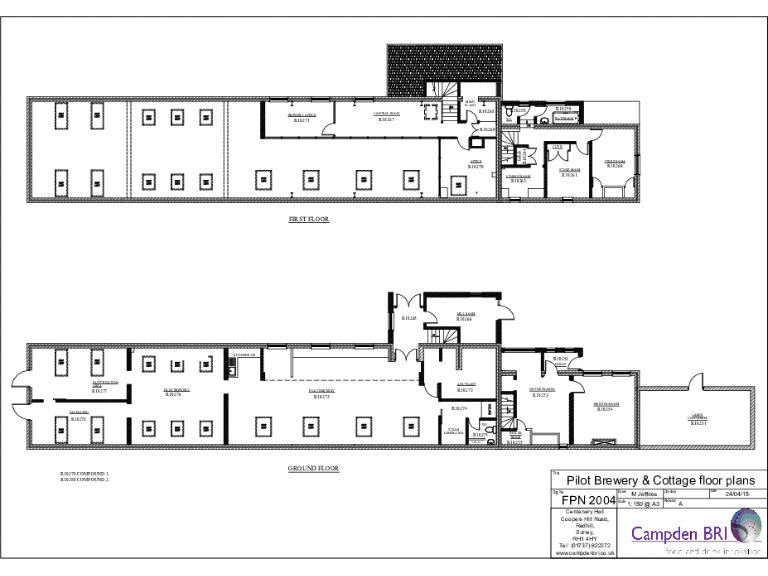
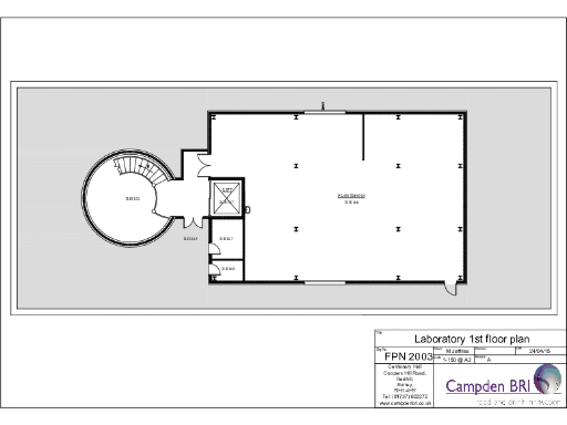
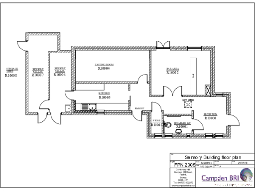
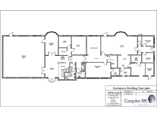
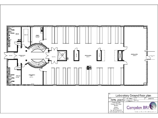
Freehold R&D/production campus with four main buildings around a courtyard
A rare freehold opportunity offering an established R&D and light production complex set within an extensive 51-acre rural estate. The core occupational area comprises approximately 6.5 acres with four main buildings arranged around a central courtyard — a mix of adapted stable-block character buildings and more modern laboratory, office and staff accommodation. Substantial onsite parking and attractive landscaped grounds support continued commercial use or conversion options.
The site sits in the Green Belt and an Area of Great Landscape Value; no specific planning permission is in place. Brownfield portions within the existing footprint may support arguments for redevelopment, but any buyer must make their own planning enquiries. The seller will consider offers for the whole site or the buildings and immediate land (c.6.5 acres) separately from the wider agricultural holding (c.44.5 acres).
Practicalities: the buildings date from mid-20th century, with mains gas boiler heating, cavity walls and pre-2002 double glazing. Broadband speeds are very slow across the site, although mobile signal is excellent. The property is offered freehold, is not VAT elected and is available only to unconditional buyers.
This asset will suit buyers seeking a substantial landholding with immediate operational buildings, or investors/developers prepared to navigate Green Belt planning constraints for alternative uses or refurbishment. The rural location offers privacy and good road links to the A25 and M25 corridors, but prospective purchasers should factor in infrastructure upgrades and planning risk.
 Out-of-town retail property for sale in High Street, RH1 — £1,400,000 • 1 bed • 1 bath • 4337 ft²
 Out-of-town retail property for sale in High Street, RH1 — £1,400,000 • 1 bed • 1 bath • 4337 ft² Land for sale in Land For Sale, Tilley Lane, Headley, Surrey, KT18 6EH, KT18 — £200,000 • 1 bed • 1 bath
 Land for sale in Land For Sale, Tilley Lane, Headley, Surrey, KT18 6EH, KT18 — £200,000 • 1 bed • 1 bath 7 bedroom detached house for sale in Ranmore Common, Surrey, RH5 — £5,000,000 • 7 bed • 4 bath • 4920 ft²
 7 bedroom detached house for sale in Ranmore Common, Surrey, RH5 — £5,000,000 • 7 bed • 4 bath • 4920 ft² Smallholding for sale in Established smallholding in Charlwood, Surrey, RH6 0ES, RH6 — £350,000 • 1 bed • 1 bath
 Smallholding for sale in Established smallholding in Charlwood, Surrey, RH6 0ES, RH6 — £350,000 • 1 bed • 1 bath 2 bedroom house for sale in Redlands, Mid Holmwood, RH5 — £825,000 • 2 bed • 1 bath • 1014 ft²
 2 bedroom house for sale in Redlands, Mid Holmwood, RH5 — £825,000 • 2 bed • 1 bath • 1014 ft² Plot for sale in Longdown Road, Guildford, Surrey, GU4 — £2,350,000 • 6 bed • 1 bath • 4662 ft²
 Plot for sale in Longdown Road, Guildford, Surrey, GU4 — £2,350,000 • 6 bed • 1 bath • 4662 ft²














































































