Established trading B&B with separate holiday bungalow and strong uplift potential.
- Six en-suite letting rooms in main guest house
- Separate detached two-bedroom bungalow, previously holiday-let
- Two-bedroom owner accommodation within main building
- Elevated sea views; close to Watergate Bay and Mawgan Porth
- Large gardens, private parking and garage on generous plot
- Accounts available to qualified buyers for trading verification
- Some mid-century wear; refurbishment likely to boost income
- Slow broadband; double-glazing installation dates unknown
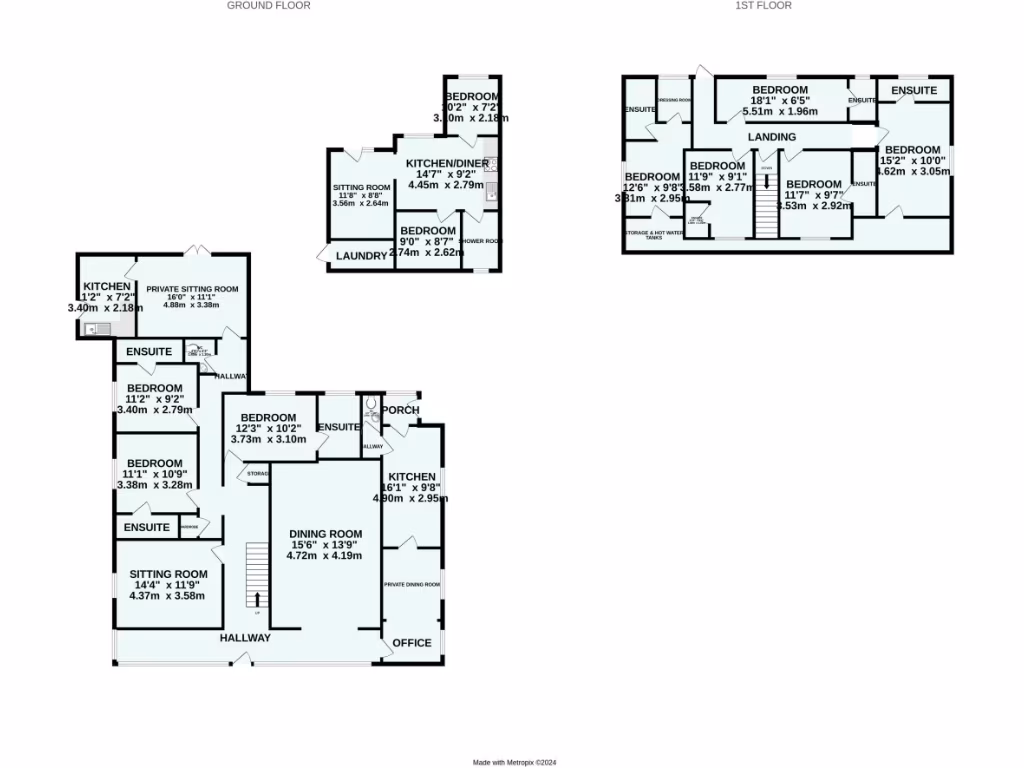
A long-established detached guest house near Newquay offering immediate trading potential. The main house provides six en-suite letting rooms alongside two-bedroom owner accommodation, while a separate detached two-bedroom bungalow with its own garden and hot tub has been let as a holiday unit in recent years. Accounts are available on request to qualified buyers, supporting income verification.
The site benefits from elevated sea views and a large plot with private parking and garage, positioned close to Watergate Bay, Mawgan Porth and Newquay International Airport — convenient for seasonal tourism. The property is freehold and arranged over multiple storeys with around 1,785 sq ft of internal space across approximately 12 rooms.
There is scope to enhance yields through refurbishment and marketing; several areas show mid-20th-century styling and wear, so updating bathrooms, kitchens and secondary finishes would increase room rates. Practical matters to note: double glazing installation dates are unknown, broadband speeds are slow, and some cosmetic and systems updating may be required.
This opportunity suits an operator or investor seeking an established guest house with additional holiday-let accommodation and clear potential to improve returns through refurbishment and stronger online presence. Buyers should review trading accounts and survey building services before exchange.
10 bedroom detached house for sale in Trevarrian, Newquay, Cornwall, TR8 — £700,000 • 10 bed • 8 bath • 1687 ft²
10 bedroom end of terrace house for sale in Berry Road, Newquay, Cornwall, TR7 — £450,000 • 10 bed • 7 bath • 1985 ft²
Guest house for sale in Countryman Guest House, Victoria Road, Camelford, Cornwall, PL32 9XA, PL32 — £625,000 • 1 bed • 1 bath • 4722 ft²
Guest house for sale in Quality North Coastal Guest House , Newquay, Cornwall, TR7 1RD, TR7 — £899,950 • 1 bed • 1 bath • 4788 ft²
6 bedroom detached house for sale in Trevarrian, Newquay, TR8 — £995,000 • 6 bed • 7 bath • 3261 ft²
14 bedroom detached house for sale in Mawgan Porth, Cornwall, TR8 — £2,500,000 • 14 bed • 11 bath • 4408 ft²














































































