**Standout Features:**
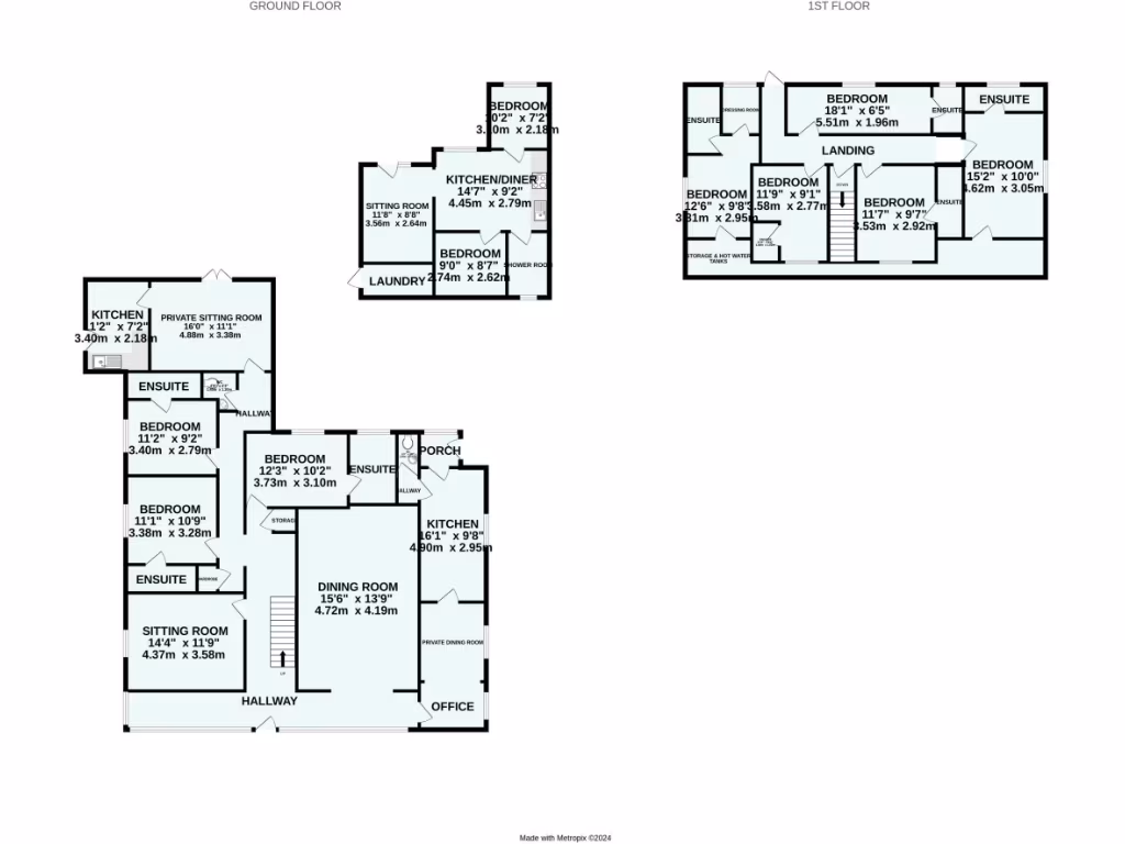
- Successful Bed and Breakfast with 6 en suite letting bedrooms
- Detached 2-bedroom bungalow and additional 2-bedroom owner's accommodation
- Prime location near Watergate Bay and Mawgan Porth Beaches
- Beautiful sea views and expansive gardens
- Ample off-street parking
- Close proximity to Newquay International Airport
- Potential for further renovations or enhancements
Located in a charming Cornish village, Trewalder presents a unique investment opportunity with significant potential as a guest house. This well-established B&B features six spacious en suite letting bedrooms, perfect for holidaymakers seeking proximity to stunning beaches like Watergate Bay and Mawgan Porth. The property also includes a detached two-bedroom bungalow with its own garden and hot tub, currently utilized as a successful holiday let.
The tranquil setting ensures comfort and security, complemented by beautiful sea views and picturesque gardens. Inside, the property boasts a contemporary design with a large dining area ideal for guest gatherings. While the decor may benefit from some updates, the overall condition is well-maintained. With ample off-street parking and proximity to Newquay International Airport, Trewalder is perfectly positioned for those looking to capitalize on the thriving tourism market.
This offering is not just a business; it’s an opportunity to immerse yourself in the serene Cornish lifestyle or elevate your investment portfolio with a promising rental venture. Act quickly—properties like this, with such versatile potential and prime location, are rarely available for long!
8 bedroom guest house for sale in Newquay, Cornwall, TR8 — £700,000 • 8 bed • 8 bath • 1785 ft²
10 bedroom end of terrace house for sale in Berry Road, Newquay, Cornwall, TR7 — £450,000 • 10 bed • 7 bath • 1985 ft²
14 bedroom detached house for sale in Mawgan Porth, Cornwall, TR8 — £2,500,000 • 14 bed • 11 bath • 4408 ft²
10 bedroom house for sale in Godolphin Way, NEWQUAY, Cornwall, TR7 — £698,000 • 10 bed • 10 bath • 4000 ft²
4 bedroom detached house for sale in Treveighan, St. Teath, Bodmin, Cornwall, PL30 — £1,250,000 • 4 bed • 2 bath • 6681 ft²
4 bedroom detached house for sale in Tregurrian, Newquay, TR8 — £750,000 • 4 bed • 3 bath • 2228 ft²






















































































