Private village site with planning for a three-bedroom bungalow on 0.22 acres.
Current planning for a 3-bed single-storey detached bungalow
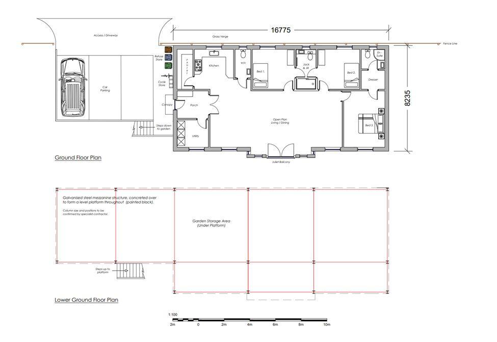
A rare chance to buy a 0.22-acre plot with current planning for a three-bedroom single-storey home in peaceful Eglingham. The permission proposes a modern stone-and-slate bungalow with open-plan living, principal en-suite and off-street parking — a straightforward scheme for a small developer, self-builder or family seeking a one-level home in a village setting.
The site includes a galvanised steel mezzanine platform that creates a substantial lower ground area currently shown as garden storage. That space offers genuine potential to add usable accommodation or a garden room, subject to planning and building regulation consents. Externally there is scope to landscape a south-facing garden and add a garage (planning dependent).
Buyers should note material points: the plot will be sold at auction and tenure is currently unknown, so legal checks are essential. Broadband speeds in the village are reported as slow, despite excellent mobile signal. The land is presently overgrown and will require clearance and basic groundwork before construction starts.
Positioned in a small, low-crime hamlet with a popular country pub and easy access to Alnwick (about eight miles), this plot suits purchasers wanting a quiet rural home within reach of town amenities. The existing planning consent and the sizeable lower-ground potential are the key value drivers for buyers prepared to manage a new-build project.
Land for sale in Brockdam, Ellingham, NE67 — £200,000 • 3 bed • 2 bath • 485 ft²
3 bedroom terraced house for sale in The Village, Eglingham, NE66 — £350,000 • 3 bed • 2 bath
Land for sale in Ellingham, Northumberland, NE67 — £500,000 • 1 bed • 1 bath
3 bedroom house for sale in Forge Cottage, Eglingham, NE66 — £450,000 • 3 bed • 2 bath • 1809 ft²
Detached house for sale in 54 North End, Longhoughton, Northumberland, NE66 — £150,000 • 1 bed • 1 bath • 976 ft²
Land for sale in Warenford Barns, North Farm, Warenford, Belford, NE70 7HL, NE70 — POA • 1 bed • 1 bath • 23522 ft²


































