Development plot with full planning permission for a 3-bed barn conversion and coastal views..
Full planning permission for 3-bed detached barn conversion (Ref 24/01956/FUL).
Plot approx. 0.12 ha (0.31 acres) with generous garden potential.
Stone-built stable/barn with character and tiled roof intact.
Allocated off-street parking and attractive countryside/coastal views.
Services available; electric connected but purchaser arranges final connections.
Buyer must join Brockdam Utilities Management Company (private sewage/road).
Property elected for VAT; offers treated exclusive of VAT unless stated.
Post-and-rail boundary fence recently erected; photos pre-date fence.
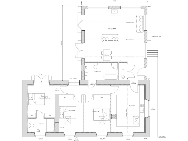
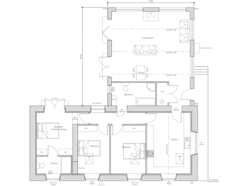
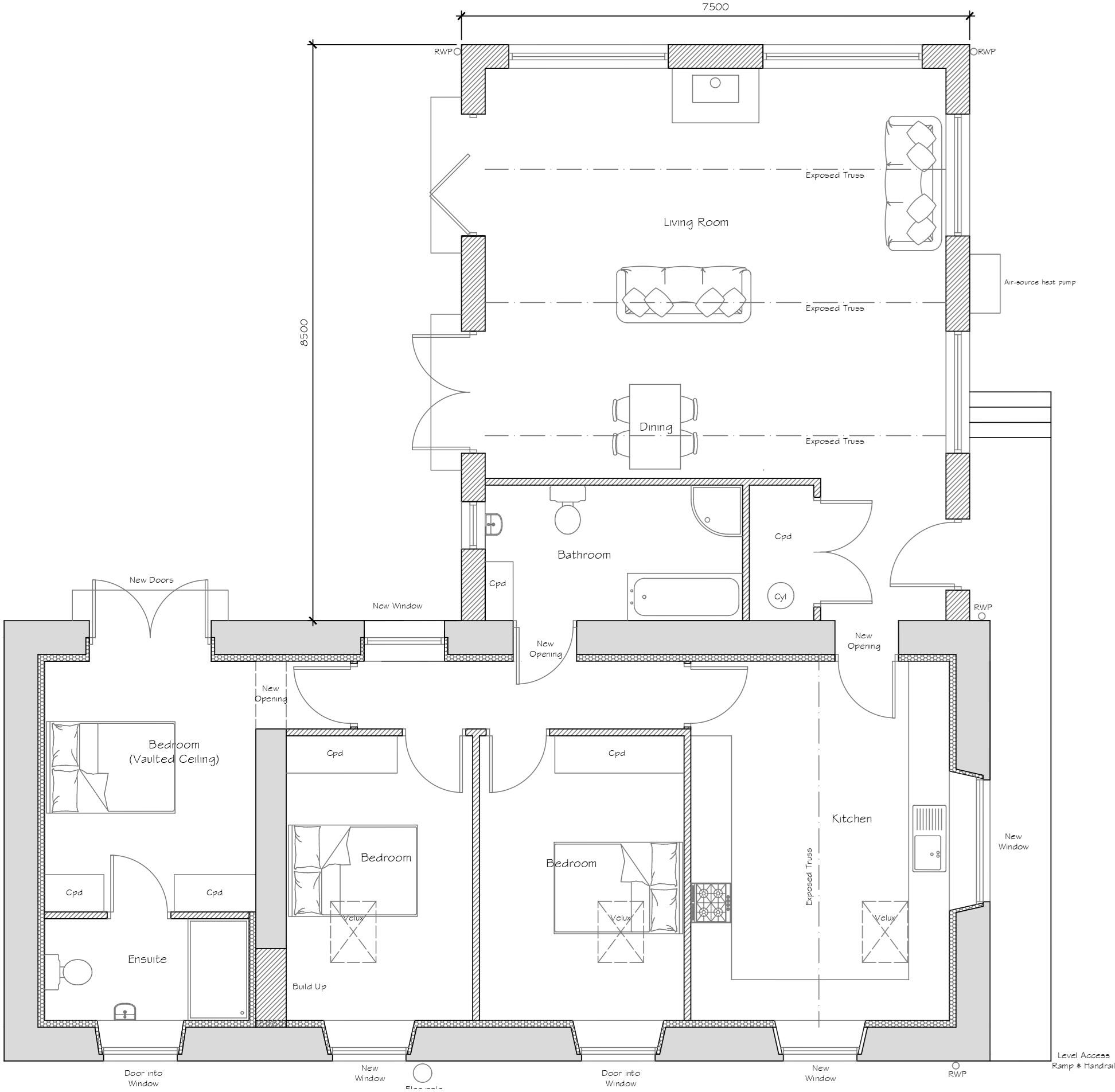
A rare development plot in Brockdam with full planning permission (Ref 24/01956/FUL) to convert a stone barn into a detached three-bedroom home. The site extends to approximately 0.12 hectares (0.31 acres) and offers generous garden space, allocated off-street parking and far-reaching countryside views towards the coast and Lindisfarne Castle. The plot is freehold and offered at a guide price of £200,000.
This is a practical opportunity for an investor, second-home buyer or family wanting a characterful rural property with modern layout potential: planning includes an open-plan kitchen/dining/living room, two bathrooms and a master en-suite. Services are available to the site and electric is already connected; purchasers must arrange any further service connections themselves.
Buyers should note material obligations and practical considerations: the site is a member-required Brockdam Utilities Management Company area (private sewage treatment and private road maintenance), the property is elected for VAT, and a post-and-rail boundary fence has been installed since the photos were taken. Overall this is a well-positioned, low-risk rural development plot with good broadband and mobile signal, easy A1 access and nearby village amenities.
Land for sale in Warenford Barns, North Farm, Warenford, Belford, NE70 7HL, NE70 — POA • 1 bed • 1 bath • 23522 ft²
Land for sale in Ellingham, Northumberland, NE67 — £500,000 • 1 bed • 1 bath
Plot for sale in Land South of Elford Farm Cottages, Elford, Bamburgh, Northumberland, NE68 — £250,000 • 1 bed • 1 bath
Land for sale in Land North East Of The Stables, Greensfield Farm, Alnwick, NE66 — £160,000 • 1 bed • 1 bath • 1313 ft²
4 bedroom barn conversion for sale in High Barn, Harehope Farm, Eglingham, Alnwick, Northumberland, NE66 — £695,000 • 4 bed • 5 bath • 1988 ft²
Land for sale in Land To The West Of 1 North Side, Shilbottle, Alnwick, NE66 — £260,000 • 1 bed • 1 bath • 20473 ft²














































