**Standout Features:**
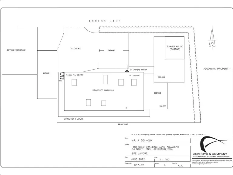
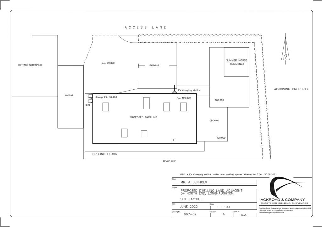
- 0.08-acre self-build plot with full planning permission (REF: 22/02314/FUL)
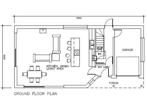
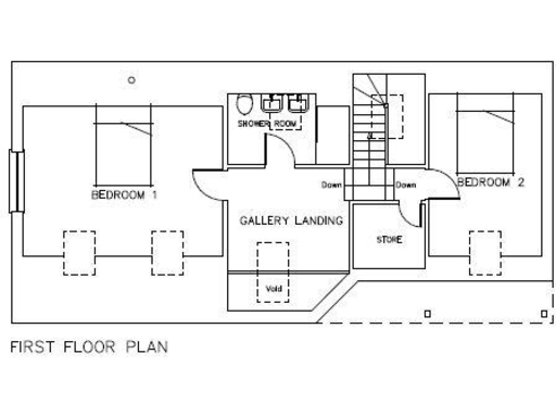
- Potential for a two-bedroom dormer bungalow with integral garage
- Off-street parking for two vehicles
- Quiet, rural location in Longhoughton, Northumberland
- Close proximity to seaside beaches and the historic market town of Alnwick
- Nearby amenities include a cafe, primary school, and local supermarket
- Favorable crime rate and affluent surroundings
**Summary:**
Explore the potential of this 0.08-acre self-build plot in the charming village of Longhoughton, offering full planning permission for a modern two-bedroom dormer bungalow with an integral garage. Envision creating your dream home in a peaceful setting surrounded by nature, while enjoying the convenience of nearby amenities such as the well-regarded Running Fox Cafe, local shops, and excellent primary schools.
The site is designed for comfortable living, featuring a spacious open-plan kitchen, dining, and living area, complemented by two double bedrooms on the first floor. This affordable opportunity in a highly sought-after rural neighborhood presents an excellent option for first-time buyers, investors, or anyone looking to downsize without compromising on quality of life.
While the plot awaits your creative touch, please note that potential buyers should conduct their own inquiries regarding service availability. Don’t miss the chance to secure this property in an area known for its stunning landscapes and friendly community; unique opportunities like this are in high demand!
Land for sale in Land North East Of The Stables, Greensfield Farm, Alnwick, NE66 — £160,000 • 1 bed • 1 bath • 1313 ft²
Land for sale in Land To The West Of 1 North Side, Shilbottle, Alnwick, NE66 — £260,000 • 1 bed • 1 bath • 20473 ft²
2 bedroom semi-detached bungalow for sale in Sea View, Alnwick, NE66 — £240,000 • 2 bed • 1 bath • 1049 ft²
3 bedroom semi-detached house for sale in East Field, Alnwick, NE66 — £265,000 • 3 bed • 2 bath • 1051 ft²
4 bedroom detached house for sale in East Field, Longhoughton, Alnwick, Northumberland, NE66 — £395,000 • 4 bed • 3 bath • 1264 ft²
4 bedroom detached house for sale in Harper Crescent, Longhoughton, NE66 — £435,000 • 4 bed • 2 bath • 1495 ft²






































