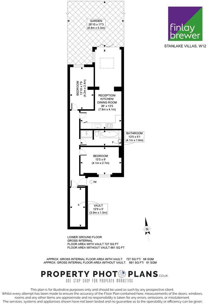
**Standout Features:**
- Charming lower-ground flat in a Victorian house
- Open-plan kitchen/reception with sliding patio doors
- Private walled garden, great for relaxation and entertaining
- Spacious bedrooms with modern finishes
- Contemporary bathroom with both bath and shower
- Approximately 727 square feet living space
- Leasehold with a lengthy 994 years remaining
**Potential Concerns:**
- High crime area noted
- Average sized living spaces might not suit larger families
This beautifully presented two-bedroom flat in the desirable Stanlake Villas (W12) perfectly combines modern living with the charm of Victorian architecture. The heart of the home features an open-plan kitchen and reception area, filled with natural light from a large skylight and sliding doors that open to a private walled garden—ideal for outdoor enjoyment or entertaining guests. The spacious double bedrooms, including one with a serene garden view, enhance the home's relaxed atmosphere, while the contemporary bathroom boasts both a free-standing bath and a separate shower, catering to diverse needs.
With its great location near Shepherds Bush Station and the vibrant amenities of Uxbridge Road, this property is well-suited for first-time buyers or investors looking for rental potential in a bustling, urban environment. Don't miss the opportunity to own this lovely home—properties like this, with such a beautiful garden and contemporary updates, tend to attract attention fast!
2 bedroom flat for sale in Stanlake Road, Shepherd's Bush, London, W12 — £685,000 • 2 bed • 2 bath • 742 ft²
2 bedroom flat for sale in Bassein Park Road, Askew Village, London, W12 — £625,000 • 2 bed • 1 bath • 679 ft²
2 bedroom apartment for sale in Goldhawk Road, London, W12 — £685,000 • 2 bed • 1 bath • 851 ft²
2 bedroom apartment for sale in Stanlake Road, London, W12 — £750,000 • 2 bed • 2 bath • 822 ft²
2 bedroom flat for sale in Coningham Road, London, W12 — £850,000 • 2 bed • 2 bath • 942 ft²
1 bedroom flat for sale in Caxton Road, London W12 — £425,000 • 1 bed • 1 bath • 506 ft²






































