Ready-to-move-in lower-ground two-bed with long lease and outdoor space.
Private front door and direct access to a secluded 45ft rear garden
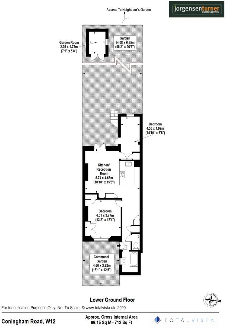
A well-presented lower-ground garden flat in Shepherds Bush, offering two bedrooms, a modern open-plan reception/kitchen and direct access to a private, secluded 45ft rear garden. The flat is chain-free with a long lease (179 years) and occupies about 712 sq ft of internal space — roomy for a two-bed London property.
The layout favours indoor-outdoor living: French doors from the reception open onto a landscaped garden with decking and mature planting, creating a quiet leafy outlook. The interior shows contemporary finishes alongside period touches (fireplace, built-in shelving, engineered floors) and a modern fitted kitchen — ready to move into for first-time buyers or those downsizing.
Practical points are straightforward: private front door, fast broadband and excellent mobile signal, short walk to Westfield White City and multiple tube lines (Central, Hammersmith & City) and local buses. Nearby schools include several highly rated primaries and a good local secondary, adding family flexibility.
Be clear on the material negatives: the flat sits on the lower-ground level so some front rooms are below street level, and the area records above-average crime and pockets of deprivation. The property is leasehold (179 years remaining), with a small ground rent quoted at £10pa and an ad-hoc service charge. These are factual matters buyers should verify before committing.
2 bedroom apartment for sale in Coningham Road, London, W12 — £550,000 • 2 bed • 1 bath • 585 ft²
2 bedroom flat for sale in Coningham Road, London, W12 — £950,000 • 2 bed • 2 bath • 1000 ft²
2 bedroom apartment for sale in Stanlake Road, London, W12 — £750,000 • 2 bed • 2 bath • 822 ft²
2 bedroom flat for sale in Hetley Road, Shepherd's Bush, London, W12 — £500,000 • 2 bed • 1 bath • 605 ft²
1 bedroom apartment for sale in Ellerslie Road, London, W12 — £425,000 • 1 bed • 1 bath • 538 ft²
2 bedroom flat for sale in Hetley Road, London, W12 — £500,000 • 2 bed • 1 bath • 602 ft²






















































