Chain-free leasehold with private west-facing outdoor space and cellar storage.
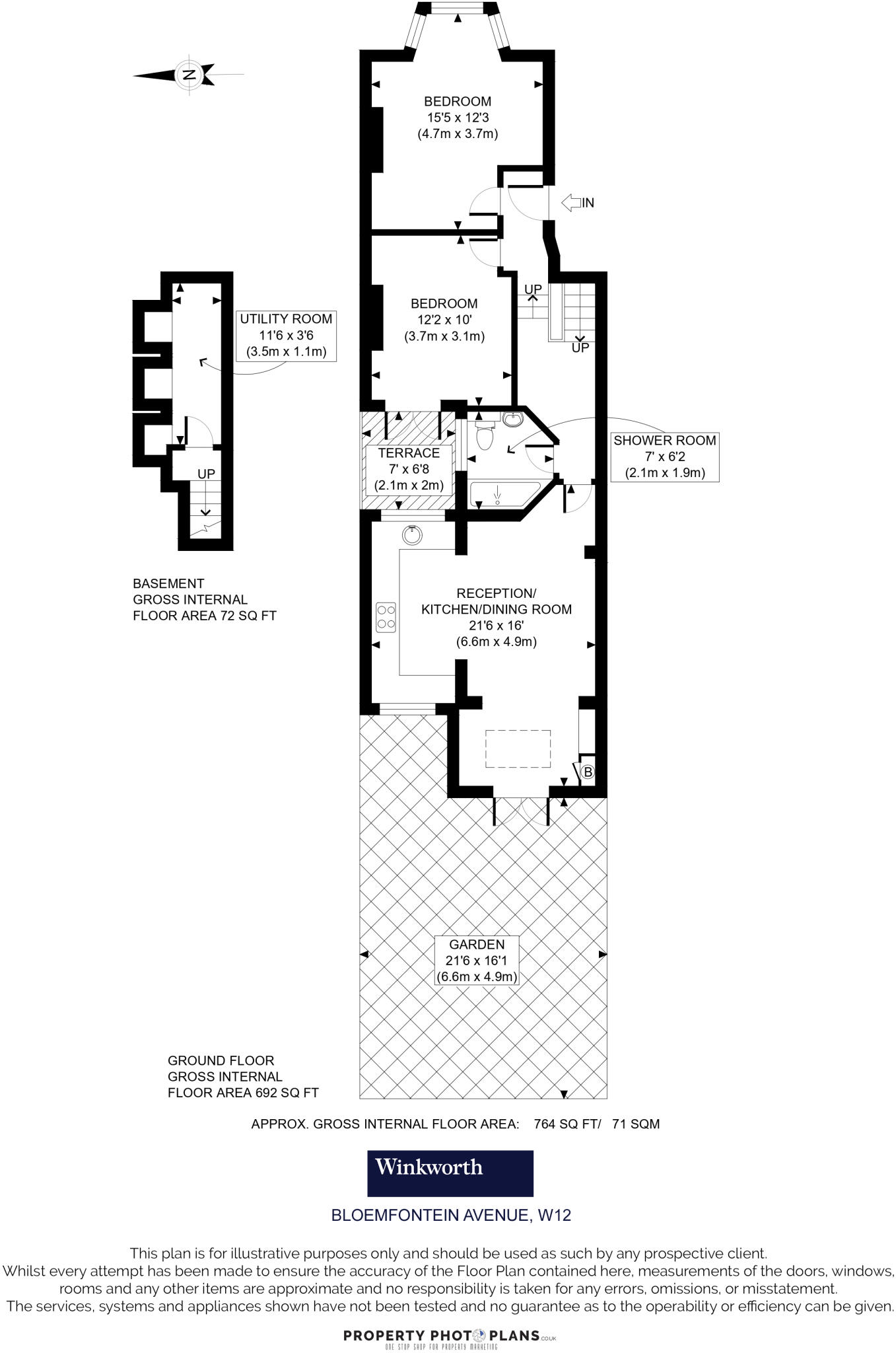
Chain-free ground-floor flat with private west-facing garden and patio
Open-plan reception and kitchen with space for dining
Two double bedrooms and a separate cellar/utility room
171 years remaining on lease; building insurance £400 pa
EPC Band D; solid brick walls likely without cavity insulation
Located near Shepherds Bush Green and Westfield; excellent transport
Local area has higher crime levels and some deprivation
Single bathroom only; mid-terrace building, built before 1900
This chain-free ground-floor apartment offers a practical first home in Shepherds Bush with private outside space and useful storage. The open-plan kitchen and reception creates a social hub for everyday living, with direct access to a west-facing garden that catches afternoon sun. Two double bedrooms and a cellar add flexibility for home working or storage.
The flat is in good condition throughout and benefits from mains gas central heating, a contemporary kitchen, and fast local broadband—suitable for commuters and tech workers. The long lease (171 years remaining) and modest building insurance make ownership straightforward; service charge is low compared with local averages.
Buyers should note material local factors: the immediate area has higher crime and pockets of deprivation, and the building is of solid-wall construction with assumed no cavity insulation. Energy performance and council tax are band D. The property is best for those who value outdoor space and convenient transport links but are comfortable living in a busy inner-city neighbourhood.
Overall this apartment is a pragmatic purchase for a first-time buyer or couple seeking a ready-to-move-in London base with garden access, scope to personalise, and long lease security.
2 bedroom apartment for sale in Coningham Road, London, W12 — £525,000 • 2 bed • 1 bath • 585 ft²
2 bedroom apartment for sale in Stanlake Road, London, W12 — £750,000 • 2 bed • 2 bath • 822 ft²
2 bedroom flat for sale in Coningham Road, Shepherds Bush, London, W12 — £535,000 • 2 bed • 1 bath • 712 ft²
2 bedroom flat for sale in Hetley Road, London, W12 — £500,000 • 2 bed • 1 bath • 602 ft²
2 bedroom flat for sale in Hetley Road, Shepherd's Bush, London, W12 — £500,000 • 2 bed • 1 bath • 605 ft²
2 bedroom flat for sale in Oaklands Grove, London, W12 — £525,000 • 2 bed • 1 bath • 675 ft²






































