Spacious period family home on a huge plot with development potential.
- Approximately 3/4-acre south-facing landscaped plot
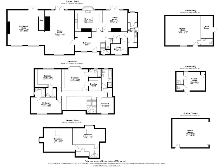
- Over 4,000 sq ft with six bedrooms and three en-suites
- Double garage, two outbuildings and separate games room
- Excellent rear access with development potential (STPP)
- Short walk to Broxbourne station and town centre
- Built 1930s–40s; likely solid brick, no obvious wall insulation
- Glazing install dates unknown; energy upgrades may be required
- Council tax level described as quite expensive
A substantial six-bedroom detached family home set on approximately three-quarters of an acre in the heart of Broxbourne. The Tudor-inspired house offers over 4,000 sq ft of adaptable living space, three en-suites, a dressing room off the master, and a warm, characterful interior that suits multigenerational living or home-working families.
The grounds are the signature feature: a south-facing, immaculately landscaped garden, sweeping driveway, double garage, two large outbuildings and a games room. Excellent rear access and the plot size create genuine potential for further development to the rear subject to planning permission (STPP).
Practical points are straightforward and important to note. The property dates from the 1930s–1940s and is built in solid brick construction; cavity wall insulation is not evident and glazing install dates are unknown, so buyers should budget for energy-efficiency upgrades. Council tax is described as quite expensive. The house is offered chain-free and benefits from fast broadband and easy commuting via Broxbourne station.
This home will appeal to buyers seeking space, privacy and character in a highly regarded location close to schooling, green space and transport links. It offers immediate family comfort with clear scope for improvement or development depending on your plans and permissions.
6 bedroom detached house for sale in Mill Lane, Broxbourne, Hertfordshire, EN10 — £1,950,000 • 6 bed • 5 bath • 4604 ft²
4 bedroom detached house for sale in Church View, Broxbourne, EN10 — £775,000 • 4 bed • 2 bath • 1476 ft²
4 bedroom detached house for sale in Baas Hill, Broxbourne, EN10 — £1,175,000 • 4 bed • 2 bath • 2167 ft²
4 bedroom detached house for sale in Prime Location, 0.25 Acre Plot, Broxbourne, EN10 — £999,995 • 4 bed • 2 bath • 2265 ft²
7 bedroom detached house for sale in Baas Hill Close, Broxbourne, Hertfordshire, EN10 — £1,500,000 • 7 bed • 4 bath • 3340 ft²
4 bedroom detached house for sale in Brookmans Avenue, Brookmans Park, Herts, AL9 — £1,250,000 • 4 bed • 2 bath • 2517 ft²


















































































































































