Ready-to-build infill plot with garages, parking and private gardens.
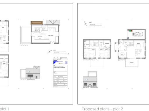
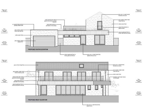
Full planning consent for two detached dwellings (application 24/00915/FUL)
A rare cleared development parcel with full planning consent for two detached new-build homes, each with double garages, private parking and gardens. The site is set back from Fort Austin Avenue, largely level and sheltered by mature trees and hedgerows on three sides, offering privacy and far-reaching views across Forder Valley to surrounding moorland.
This is an immediately developable infill lot in a desirable, well-connected part of Plymouth. Approved plans (application 24/00915/FUL) include the formation of a public footpath and deliver a straightforward two‑home scheme in an affluent, low-crime area with fast broadband and excellent mobile signal. Local amenities, several primary schools rated Good and transport links to Plymouth city centre and Derriford Hospital are all close by.
Buyers should note there are CIL, S106 and BNG liabilities to be met as part of the development, and VAT is payable on the site. Tenure details are not provided and should be checked before exchange. Overall, the parcel offers clear short-term development potential for small-house builders or investors targeting high-demand family housing in a semi-rural city-edge setting.
Plot for sale in 802 Wolseley Road, Plymouth, Devon, PL5 — £170,000 • 1 bed • 1 bath
Land for sale in Land at Petersfield Close, Highter Compton, Plymouth., PL3 — £595,000 • 1 bed • 1 bath
Land for sale in Wolseley Road, PLYMOUTH, PL5 — £170,000 • 1 bed • 1 bath • 2000 ft²
Plot for sale in Wolseley Road, Plymouth, PL5 — £170,000 • 1 bed • 1 bath
Plot for sale in Landrake, Nr Plymouth, PL12 5EG - Site For Upto 10 Dwellings, PL12 — £300,000 • 1 bed • 1 bath






















