Central St Albans two-bed with period charm and flexible basement space.
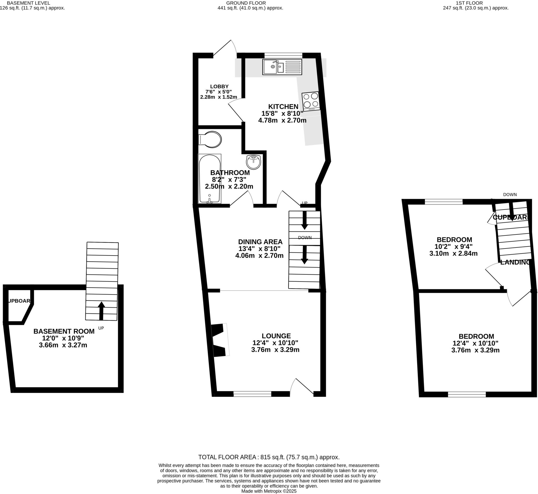
Chain free freehold mid-terrace, approx. 815 sq ft over three floors
Tucked into St Albans’ conservation area, this compact mid-terrace home blends Victorian character with practical living across three floors. The bright front lounge with a sash window and feature fireplace leads through to a separate dining area and fitted kitchen — an inviting layout for everyday life and entertaining. A useful basement room offers flexible space for a study, guest room or snug, while two well-proportioned first-floor bedrooms complete the accommodation.
At approximately 815 sq ft, the house suits downsizers, couples or small families who value central location over extensive outside space. It sits just 0.3 miles from the High Street, moments from Verulamium Park and under a mile to St Albans City station — excellent for commuting and local amenities.
Practical facts to note: the property is freehold and being sold chain free. Constructed circa 1900–1929 in solid brick, it retains period features such as exposed beams and sash glazing; secondary glazing has been fitted. There is no private garden, street parking only, and the plot is small. Walls are assumed to have no cavity insulation and council tax is above average, which may affect running costs.
This is a characterful, centrally located terraced house with strong commuter appeal and scope for modest modernisation to improve energy performance and personalise interiors. A straightforward viewing will quickly reveal whether the compact layout and small plot fit your needs.
2 bedroom terraced house for sale in Branch Road, Park Street, St. Albans, Hertfordshire, AL2 — £400,000 • 2 bed • 1 bath • 673 ft²
2 bedroom terraced house for sale in Folly Avenue, St. Albans, Hertfordshire, AL3 — £675,000 • 2 bed • 1 bath • 998 ft²
2 bedroom terraced house for sale in Temperance Street, St. Albans, Hertfordshire, AL3 — £525,000 • 2 bed • 1 bath • 650 ft²
3 bedroom terraced house for sale in Mercers Row, St. Albans, Hertfordshire, AL1 — £500,000 • 3 bed • 1 bath • 824 ft²
2 bedroom terraced house for sale in Lattimore Road, St. Albans, Hertfordshire, AL1 — £400,000 • 2 bed • 1 bath • 503 ft²
2 bedroom end of terrace house for sale in Spencer Street, St. Albans, AL3 — £500,000 • 2 bed • 1 bath • 410 ft²


































