Ideal for families and remote workers, minutes from shops, schools and transport.
Chain free two-bedroom Victorian mid-terrace
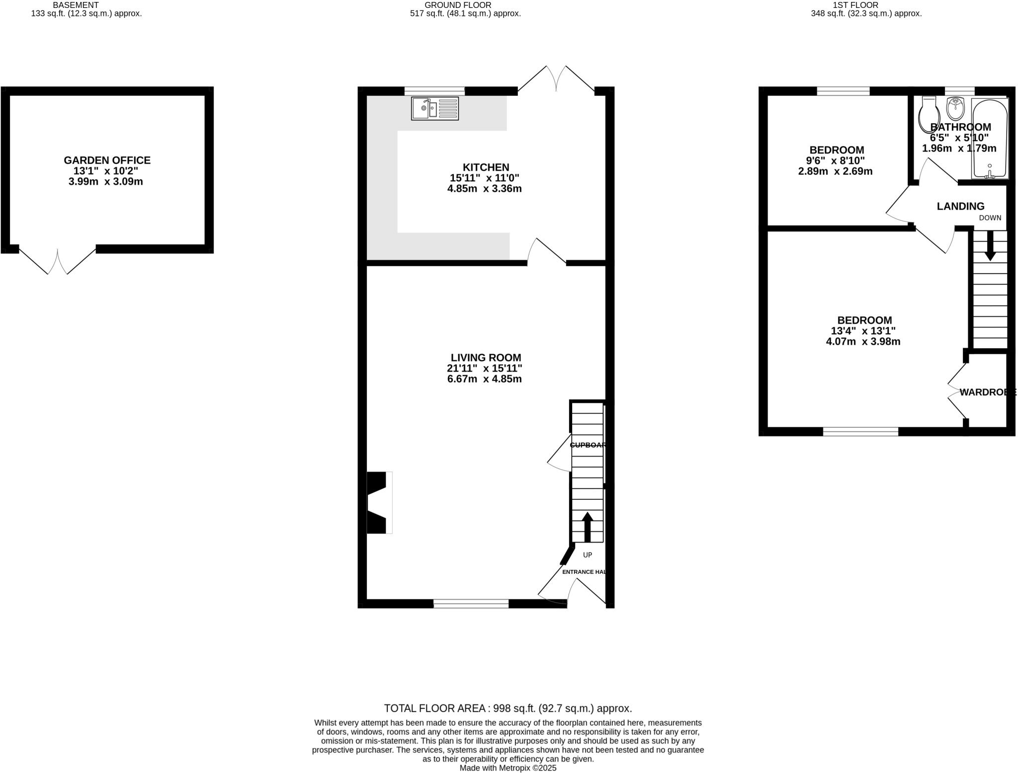
A well-proportioned Victorian mid-terrace offered chain free and arranged over two storeys, providing comfortable living for a small family or professional couple. The ground floor has a bright living room with bespoke cabinetry and a fitted kitchen opening onto a private rear garden with paved patio and lawn. Upstairs are two good-sized double bedrooms with fitted storage and a modern family bathroom. 
A standout feature is the dedicated garden office/home studio at the foot of the garden, useful for hybrid working, hobbies or simple storage. The property is double glazed and heated by a mains gas boiler and radiators, and its 998 sq ft footprint feels generous for a two-bedroom terrace. Local amenities include excellent schools, shops and easy walking access to St Albans city centre (approx 0.6 miles).
Practical points to note: the house was originally constructed c.1900–1929 with solid brick walls (no known cavity insulation), and double glazing install date is not recorded. There is no off-street parking and the plot is modest in size. While well-presented now, the house offers scope for modest updating or a rear extension subject to planning and structural checks. Council tax band is moderate and the area is very affluent with low crime and fast broadband.
 2 bedroom terraced house for sale in Thornton Street, St. Albans, Hertfordshire, AL3 — £575,000 • 2 bed • 1 bath • 704 ft²
 2 bedroom terraced house for sale in Thornton Street, St. Albans, Hertfordshire, AL3 — £575,000 • 2 bed • 1 bath • 704 ft² 2 bedroom terraced house for sale in Temperance Street, St. Albans, Hertfordshire, AL3 — £450,000 • 2 bed • 1 bath • 472 ft²
 2 bedroom terraced house for sale in Temperance Street, St. Albans, Hertfordshire, AL3 — £450,000 • 2 bed • 1 bath • 472 ft² 3 bedroom terraced house for sale in Folly Lane, St. Albans, Hertfordshire, AL3 — £740,000 • 3 bed • 2 bath • 1081 ft²
 3 bedroom terraced house for sale in Folly Lane, St. Albans, Hertfordshire, AL3 — £740,000 • 3 bed • 2 bath • 1081 ft² 2 bedroom semi-detached house for sale in Puddingstone Drive, St. Albans, Hertfordshire, AL4 — £675,000 • 2 bed • 1 bath • 1164 ft²
 2 bedroom semi-detached house for sale in Puddingstone Drive, St. Albans, Hertfordshire, AL4 — £675,000 • 2 bed • 1 bath • 1164 ft² 2 bedroom terraced house for sale in Temperance Street, St. Albans, Hertfordshire, AL3 — £525,000 • 2 bed • 1 bath • 650 ft²
 2 bedroom terraced house for sale in Temperance Street, St. Albans, Hertfordshire, AL3 — £525,000 • 2 bed • 1 bath • 650 ft² 4 bedroom end of terrace house for sale in Sadleir Road, St. Albans, Hertfordshire, AL1 — £875,000 • 4 bed • 2 bath • 1092 ft²
 4 bedroom end of terrace house for sale in Sadleir Road, St. Albans, Hertfordshire, AL1 — £875,000 • 4 bed • 2 bath • 1092 ft²


















































































