Good-sized garden and powered outbuildings — ideal for first home or rental upgrade.
- Chain free three-bedroom mid-terrace, freehold tenure
- Private rear garden with summerhouse and powered shed
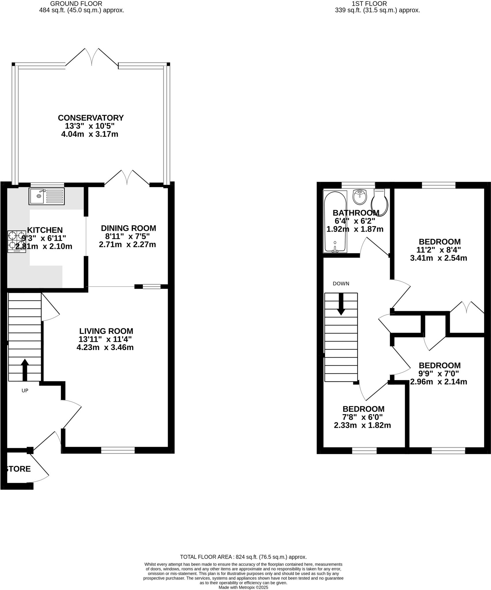
- Average 824 sq ft living space across two storeys
- Single family bathroom only, may be constrained for larger families
- Dated interior and decor; cosmetic updating likely required
- On-street/communal parking only, no guaranteed private parking
- Mains gas central heating and double glazing (install dates unknown)
- Local area records higher crime levels; consider security measures
A practical three-bedroom mid-terrace offered chain free in St Albans, suited to first-time buyers, young families or buy-to-let investors. The home provides comfortable living across two floors with an average overall footprint of about 824 sq ft and a decent private rear garden that includes a summerhouse and a powered shed — a genuine external asset for the area.
Internally the layout is straightforward: a welcoming living space, separate kitchen and a single family bathroom upstairs serving three bedrooms. The property is freehold, double glazed and heated by a mains gas boiler with radiators. Its location gives convenient access to local shops, schools and transport links, and nearby schools include several rated Good or higher.
Buyers should note the house shows dated internal decor and will benefit from cosmetic updating; this presents clear potential to add value. There is only one bathroom and parking is primarily on-street or communal, which may not suit households needing off-street parking. The local area records higher-than-average crime, which buyers should consider alongside the property's strengths.
For purchasers looking to move in quickly or investors seeking a straightforward refurbishment opportunity in a well-connected town, this property offers clear upside: chain-free possession, a private garden with powered outbuildings, and solid local amenities. Budget for upgrading the interior and consider longer-term measures for security and parking where required.
5 bedroom semi-detached house for sale in Carlisle Avenue, St. Albans, Hertfordshire, AL3 — £1,300,000 • 5 bed • 3 bath • 1666 ft²
4 bedroom end of terrace house for sale in Sadleir Road, St. Albans, Hertfordshire, AL1 — £875,000 • 4 bed • 2 bath • 1092 ft²
2 bedroom terraced house for sale in Folly Avenue, St. Albans, Hertfordshire, AL3 — £675,000 • 2 bed • 1 bath • 998 ft²
3 bedroom semi-detached house for sale in St. Vincent Drive, St. Albans, Hertfordshire, AL1 — £665,000 • 3 bed • 2 bath • 1279 ft²
3 bedroom semi-detached house for sale in Wynchlands Crescent, St. Albans, Hertfordshire, AL4 — £700,000 • 3 bed • 1 bath • 867 ft²
3 bedroom semi-detached house for sale in Orient Close, St. Albans, Hertfordshire, AL1 — £775,000 • 3 bed • 1 bath • 948 ft²






























































