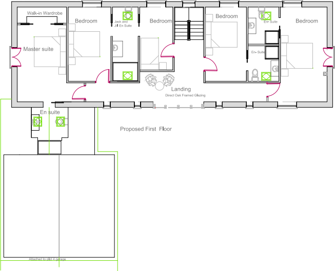
**Standout Features:**
- **Reserved Matters Planning Consent** for a unique five-bedroom luxury design.
- **Idyllic Village Location** near Caersws and Newtown, ensuring both serenity and accessibility.
- **Individual Services** provided for enhanced convenience.
- Spacious **‘L’ shaped layout** creating a secluded courtyard garden.
- Includes an **Oak framed double garage** designed in a traditional style.
- Surrounded by beautiful landscapes and amenities such as a church and a post box.
**Summary:**
Discover an exceptional opportunity to build your dream home on this expansive plot at Church House Farm, a unique development designed to replicate the charm of a rural farmyard courtyard. Set in the peaceful village of Llanwnog, this site comes with reserved matters planning consent, allowing for a bespoke long barn-style residence complemented by an oak framed double garage. Envision entertaining in your private courtyard garden, surrounded by stunning countryside views and the community atmosphere of this emerging neighborhood.
Nestled just 2 miles from Caersws and 7 miles from Newtown, you’ll have access to essential amenities, with low crime and fast broadband enhancing the appeal for families and professionals alike. While the area is classified as 'very deprived', the tranquil environment and picturesque surroundings offer a serene escape. This plot is offered freehold and chain-free, making it ideal for an immediate investment in your future. Don’t miss out on the chance to secure this rare gem—viewing is highly recommended for those looking to create a personalized retreat or a potential investment property.
Plot for sale in Plot 3, Land at Church House Farm, Llanwnog, SY17 — £110,000 • 1 bed • 1 bath • 651 ft²
Plot for sale in Land Adjacent Maes Awel, Bont Dolgadfan, Llanbrynmair, Powys, SY19 — £85,000 • 1 bed • 1 bath • 1268 ft²
4 bedroom detached house for sale in Plot 4, Tregynon, Newtown, SY16 — £110,000 • 4 bed • 2 bath • 1845 ft²
3 bedroom detached house for sale in Plot 3, Tregynon, Newtown, SY16 — £60,000 • 3 bed • 2 bath • 1845 ft²
Plot for sale in Van Road, Llanidloes, Powys, SY18 — £150,000 • 1 bed • 1 bath • 8254 ft²
Land for sale in Land At Rock Farm, Llanllwchaiarn, Newtown, SY16 — £235,000 • 1 bed • 1 bath • 21528 ft²


























