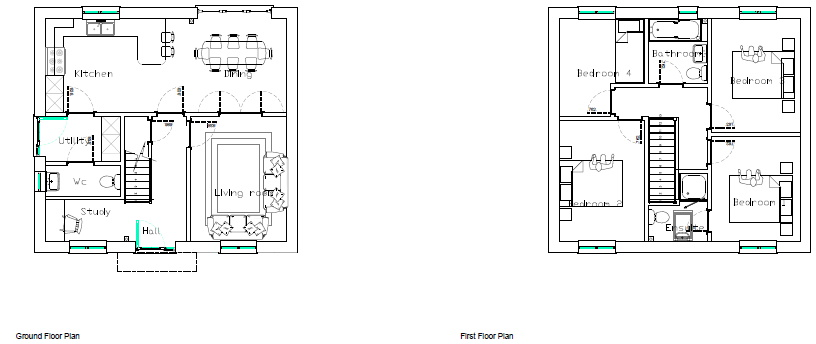
**Standout Features:**
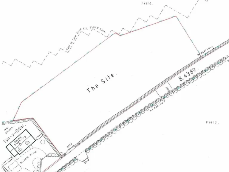
- 3-bedroom detached new build with **outline planning consent** (Application No: P/2017/0580)
- Set in the **charming village of Tregynon**
- Off-street parking available
- Local Needs Occupancy restriction applies
- Close proximity to Newtown (5 miles) and Welshpool (12 miles)
- Scenic rural setting with excellent mobile signal and average broadband speeds
**Concise Summary:**
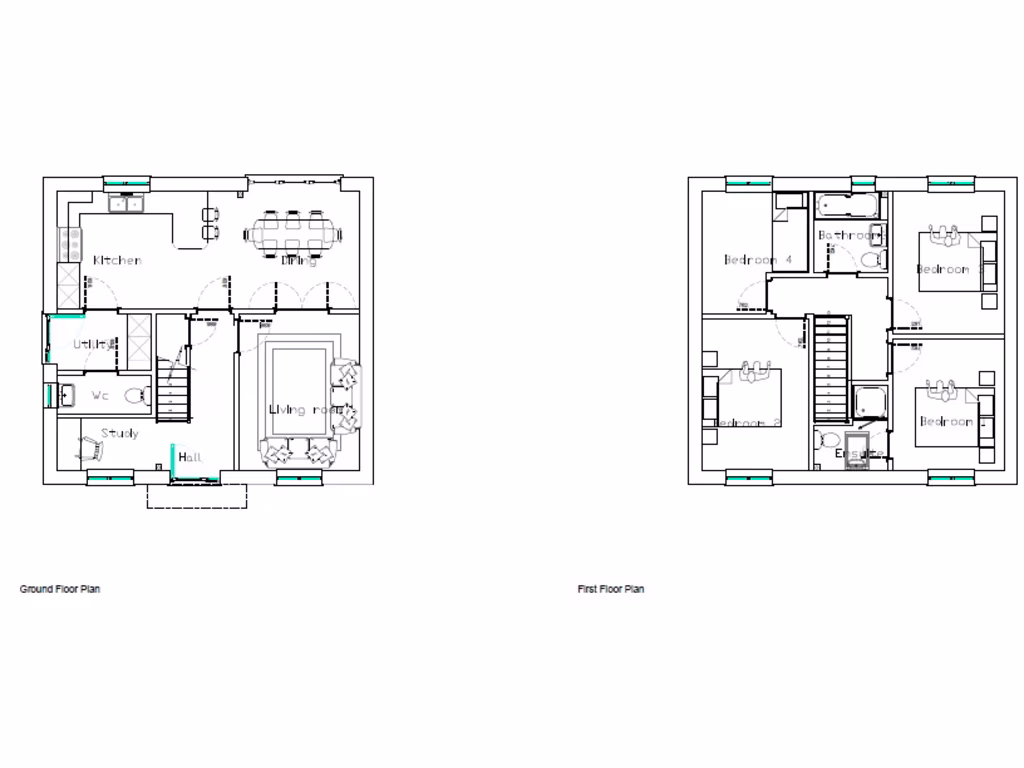
Explore the opportunity to create your dream home on this expansive 3-bedroom detached plot in Tregynon. Spanning **1,845 sq. ft.**, Plot 3 comes with valuable outline planning permission and a Local Needs Occupancy restriction, making it ideal for those looking to settle in this picturesque village. Surrounded by tranquil countryside views, this plot offers a spacious garden and off-street parking, ensuring a comfortable living environment.
The village provides a sense of community with essential amenities just a short walk away. This property invites you to build a serene lifestyle away from the hustle and bustle, with Newtown and Welshpool nearby for additional services and entertainment. With its combination of rural charm and the practicality of nearby towns, this plot is a rare find that won't last long! Take advantage of this unique opportunity to own a piece of Tregynon today.
4 bedroom detached house for sale in Plot 4, Tregynon, Newtown, SY16 — £110,000 • 4 bed • 2 bath • 1845 ft²
Plot for sale in Plot 3, Land at Church House Farm, Llanwnog, SY17 — £110,000 • 1 bed • 1 bath • 651 ft²
Plot for sale in Plot 5, Land at Church House Farm, Llanwnog, SY17 — £110,000 • 1 bed • 1 bath • 708 ft²
Detached house for sale in Olivers Lane, Tregynon, Newtown, Powys, SY16 — £100,000 • 1 bed • 1 bath
Land for sale in Land At Dolhafren, Caersws, Powys, SY17 — £315,000 • 1 bed • 1 bath
Plot for sale in To The Rear Of Dolguan East, Milford Road, SY16 2BD, SY16 — £160,000 • 1 bed • 1 bath






























