Full planning and groundwork in place for a striking contemporary home.
Full extant planning permission for one split-level dwelling
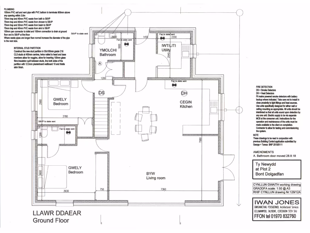
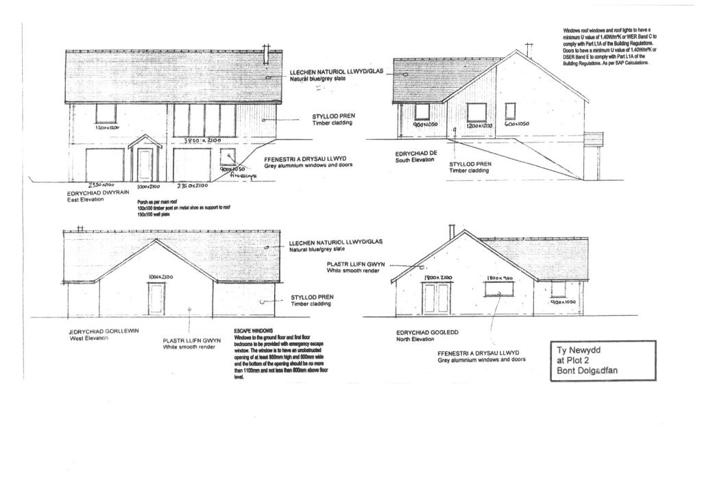
A generous 0.19-acre plot with full, extant planning permission for a contemporary split-level house. Major groundwork has been started — foundations, retaining walls and some drainage are already in place — reducing early-stage costs and timescales. The design allows two bedrooms with scope for a third on the lower ground floor, and no sprinkler system is required under current building regulations.
Set in elevated countryside above Bont Dolgadfan, the site enjoys panoramic rural views and borders a meadow to the north. Mains services are available nearby and mobile signal and broadband are reported as excellent, supporting modern living or holiday rental use. Vehicular access is included in the planning consent.
Buyers should note the plot’s remoter location: Newtown is about 18 miles away, Machynlleth 11 miles. The surrounding area is classified as very deprived, which can affect local amenities and resale comparables. The purchaser will be responsible for completing the build to finish; while initial works were carried out to building regulations and pre-commencement conditions were satisfied, further construction and associated costs remain.
This plot will suit a buyer looking for a bespoke new-build in scenic countryside, an investor seeking a holiday or long-term let opportunity, or someone wanting to create a low-maintenance contemporary home with excellent views. Viewing can be arranged at a reasonable time.
Plot for sale in Plot 5, Land at Church House Farm, Llanwnog, SY17 — £110,000 • 1 bed • 1 bath • 708 ft²
Plot for sale in Old Post Office Lane, Carno, Powys, SY17 — £120,000 • 1 bed • 1 bath
Plot for sale in Adj To The Glyn, Llanbrynmair, Powys, SY19 — £175,000 • 1 bed • 1 bath • 2908 ft²
Plot for sale in Plot 3, Land at Church House Farm, Llanwnog, SY17 — £110,000 • 1 bed • 1 bath • 651 ft²
Land for sale in Residential Development Site at Land Adjacent Llety Piod, Foel, Welshpool, SY21 — £100,000 • 1 bed • 1 bath • 13940 ft²
Plot for sale in Yr Efail, Dinas Mawddwy, Machynlleth, SY20 9LL, SY20 — £80,000 • 2 bed • 1 bath










































