Spacious self-build opportunity with countryside views near Clywedog Reservoir.
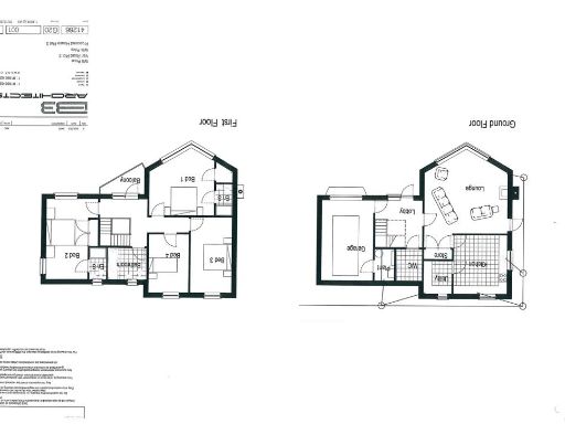
- Full extant planning permission for a 4-bedroom detached house (granted 2011)
- Elevated plot with open countryside views
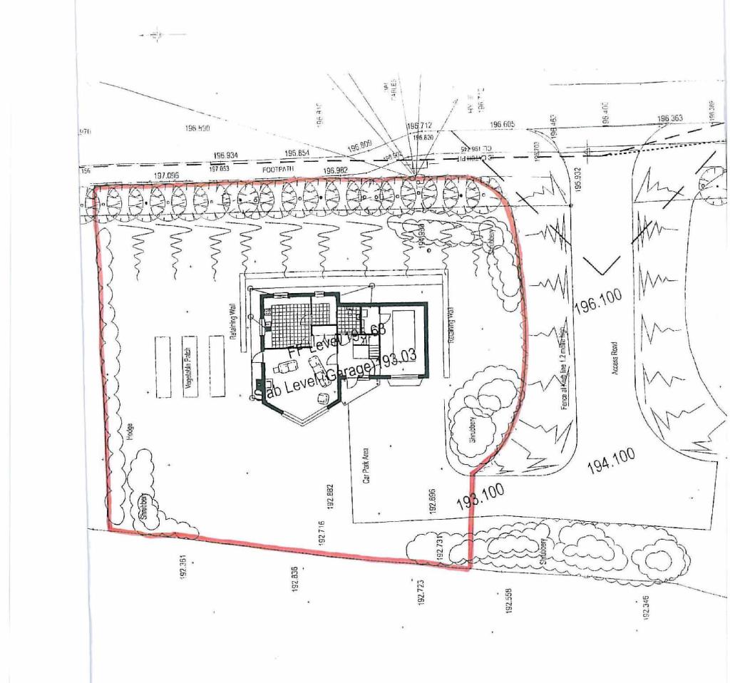
- Extremely large plot: approx. 8,254 sq ft; 27m frontage
- Mains services available nearby; fast broadband and excellent mobile signal
- Integral garage and scope for landscaped gardens and parking
- Planning date 2011 — buyers must confirm current validity and conditions
- Located on town fringe; wider area classified as very deprived
- Buyer AML charge £36 per person applies
A rare building plot on the outskirts of Llanidloes with an elevated position and open countryside views. Full extant planning permission (granted 8 April 2011) exists for a four-bedroom detached house with integral garage, balcony and landscaped grounds, making this a strong opportunity for a self-build family home or small-scale developer scheme.
The site is extremely large (approx. 8,254 sq ft) with a frontage of 27m and depths of about 28.4–32m, offering space for gardens and car parking. Mains services are available nearby, mobile signal is excellent and broadband speeds are reported fast — useful practical advantages for modern living or rental prospects. Flooding risk is recorded as No Risk and tenure is freehold.
Buyers should note the planning permission dates from 2011; anyone interested should check current planning status and any conditions or updates with the local planning authority before purchase. The plot sits on the town fringe in a small market town environment; while Llanidloes offers outdoor amenities (close to Clywedog Reservoir) and good road links to Newtown and Aberystwyth, the wider area is classified as very deprived which could affect long-term resale values and local services.
A modest administrative charge of £36 per person is required to cover mandatory anti-money laundering checks for buyers. Overall, the site suits those seeking a countryside build with good connectivity, or investors targeting self-build or onward sale, provided planning and local factors are fully reviewed.
Plot for sale in Plot 5, Land at Church House Farm, Llanwnog, SY17 — £110,000 • 1 bed • 1 bath • 708 ft²
Plot for sale in Old Post Office Lane, Carno, Powys, SY17 — £120,000 • 1 bed • 1 bath
Plot for sale in Plot 3, Land at Church House Farm, Llanwnog, SY17 — £110,000 • 1 bed • 1 bath • 651 ft²
Plot for sale in At Hendidley, Milford Road, Newtown, Powys, SY16 — £200,000 • 1 bed • 1 bath
Plot for sale in Pant-Y-Dwr, Rhayader, LD6 — £225,000 • 1 bed • 1 bath
Detached house for sale in Pantydwr RHAYADER LD6 5LR, LD6 — £150,000 • 1 bed • 1 bath


































