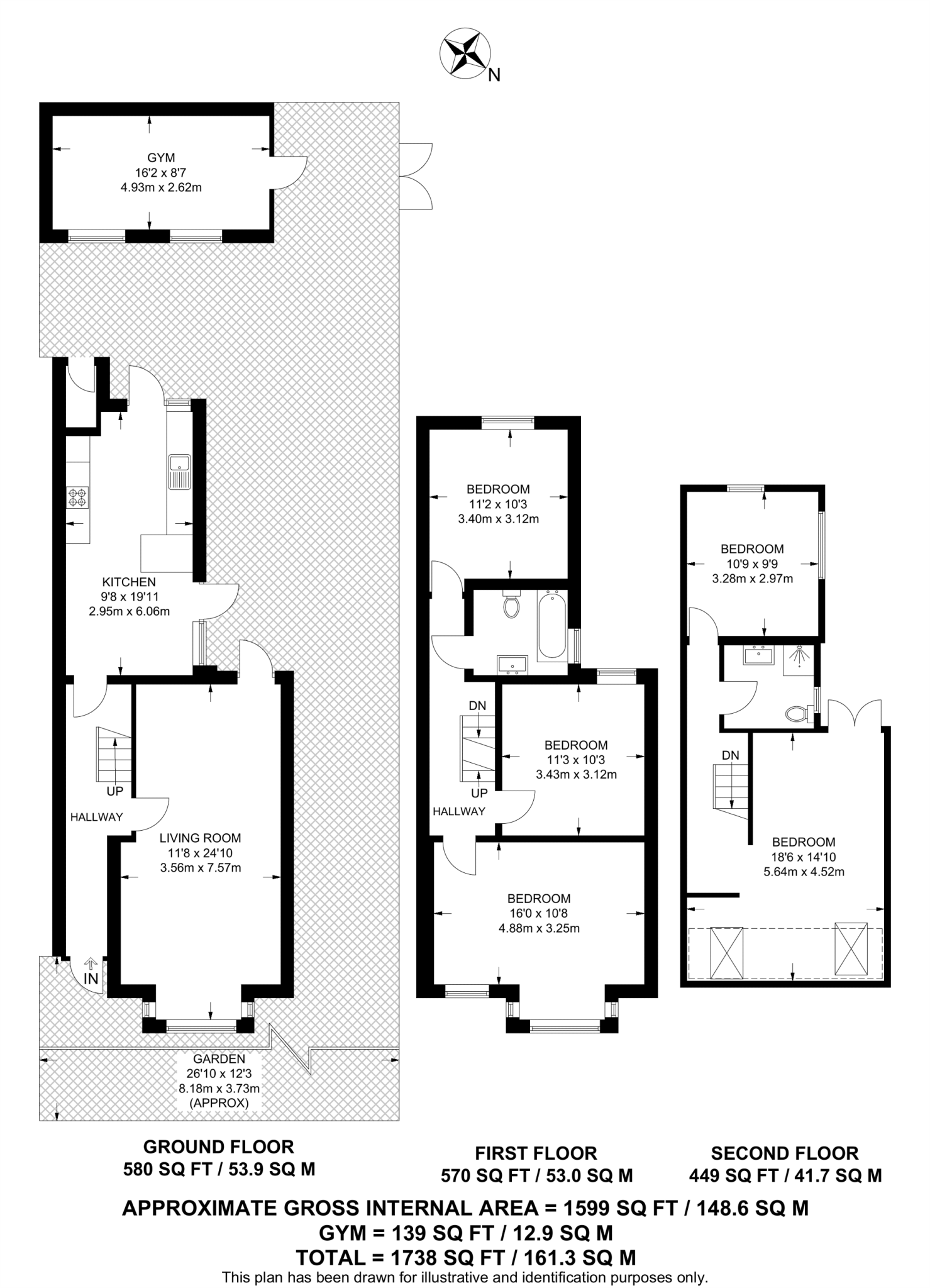
Large period home with driveway, garden and gym outbuilding for family buyers.
- Five double bedrooms, well proportioned rooms throughout
- Private driveway and integral garage, rare for the area
- Outer building currently fitted out as a gym
- Extended contemporary kitchen with open-plan feel
- Sunny, spacious rear garden suited to families
- Two bathrooms only for five bedrooms, consider adding a shower room
- Solid brick walls; likely no cavity insulation, energy improvements needed
- Local area records higher crime levels than average
A large Victorian end-of-terrace offering five double bedrooms, a private driveway, garage and an outer building currently set up as a gym. The house combines period character—high ceilings and bay windows—with a contemporary extended kitchen and sunny rear garden, making it well suited to growing families who need space near good schools and green open spaces.
Location is a strong selling point: close to Walthamstow Village, Leyton and Leytonstone amenities, short walks to Hollow Pond, Leyton Flats and Epping Forest, and quick local transport links. Broadband and mobile signals are excellent, supporting home working and family connectivity.
Buyers should note a few practical issues: the property has solid brick walls with no known cavity insulation, and the house has two bathrooms for five bedrooms. The local area records higher-than-average crime levels, which may concern some purchasers. Overall the house is freehold, structurally period-built (c.1900–1929) and offers clear potential for energy-efficiency improvements and interior reconfiguration if desired.
5 bedroom end of terrace house for sale in Peterborough Road, London, E10 — £925,000 • 5 bed • 2 bath • 1564 ft²
5 bedroom end of terrace house for sale in Peterborough Road, Leyton, London, E10 — £925,000 • 5 bed • 2 bath • 1576 ft²
5 bedroom end of terrace house for sale in Samantha Close, Walthamstow, London, E17 — £875,000 • 5 bed • 2 bath • 1977 ft²
5 bedroom house for sale in Pretoria Avenue, Walthamstow, London, E17 — £1,499,999 • 5 bed • 2 bath • 1642 ft²
5 bedroom terraced house for sale in Lea Bridge Road, E17, Walthamstow, London, E17 — £850,000 • 5 bed • 2 bath • 1829 ft²
4 bedroom house for sale in Westdown Road, Leyton, London, E15 — £725,000 • 4 bed • 3 bath • 1381 ft²






































































