E15 2DA - 4 bed victorian terrace home in Leyton And Wanstead, E15 2DA

View on Property Piper

4 bedroom house for sale in Westdown Road, Leyton, London, E15

Summary - 107 Westdown Road E15 2DA

4 bed 3 bath House

Newly renovated Victorian terrace with modern interiors and excellent transport links.
Freehold Victorian mid-terrace over three floors, period bay window
This recently renovated period mid-terrace on Westdown Road combines original Victorian character with contemporary finishes across three floors. Sunny, naturally bright rooms include a bay-fronted reception and a sleek modern kitchen, creating flexible living and entertaining space for families.

Set close to Leyton Underground and Westfield Stratford, the house offers excellent transport links and local amenities—shops, parks and strong schools such as Harris Academy Chobham and Colegrave Primary are within easy reach. The property is freehold and benefits from double glazing and gas central heating.

Practical considerations are straightforward: the rear garden has been newly paved and the plot is small, reflecting typical mid-terrace proportions. The wider neighbourhood shows signs of deprivation and recorded local crime is high—buyers should weigh this against the home’s internal standard and location advantages.

Note: listing information contains inconsistent bedroom counts (some sources state five bedrooms). The present details identify four bedrooms; interested buyers should confirm the exact room count and layout on viewing.

Property Details

Image Descriptions

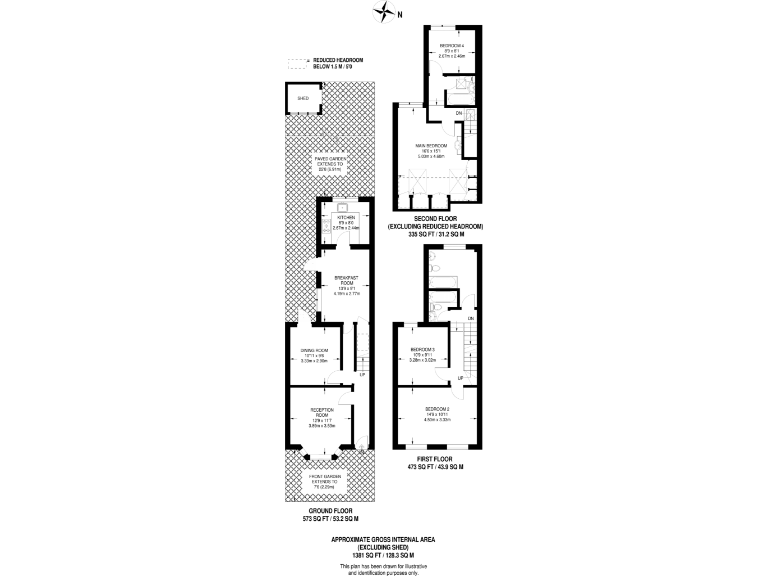
Floorplan Description

Rooms

Textual Property Features

Target Audience

AI Tags

Detected Visual Features

EPC Details

Nearby Schools

Nearest Bars And Restaurants

,,,,}

Nearest General Shops

,,}

Nearest Grocery shops

,,}

Nearest Supermarkets

,,}

Nearest Religious buildings

,,}

Nearest Medical buildings

,,,}

Nearest Airports

,}

Nearest Leisure Facilities

,,,,}

Nearest Tourist attractions

,,}

Nearest Train stations

,,,,}

Nearest Bus stations and stops

,,,,}

Nearest Hotels

,,}

Tags

Local Market Stats

AirBnB Data

Similar Properties

Meta

High Res Images

Compatible Images

Low res Images

Thumbnails

Raw Images

High Res Floorplan Images

Compatible Floorplan Images

Low res Floorplan Images

FloorplanImages Thumbnail

Raw Floorplan Images