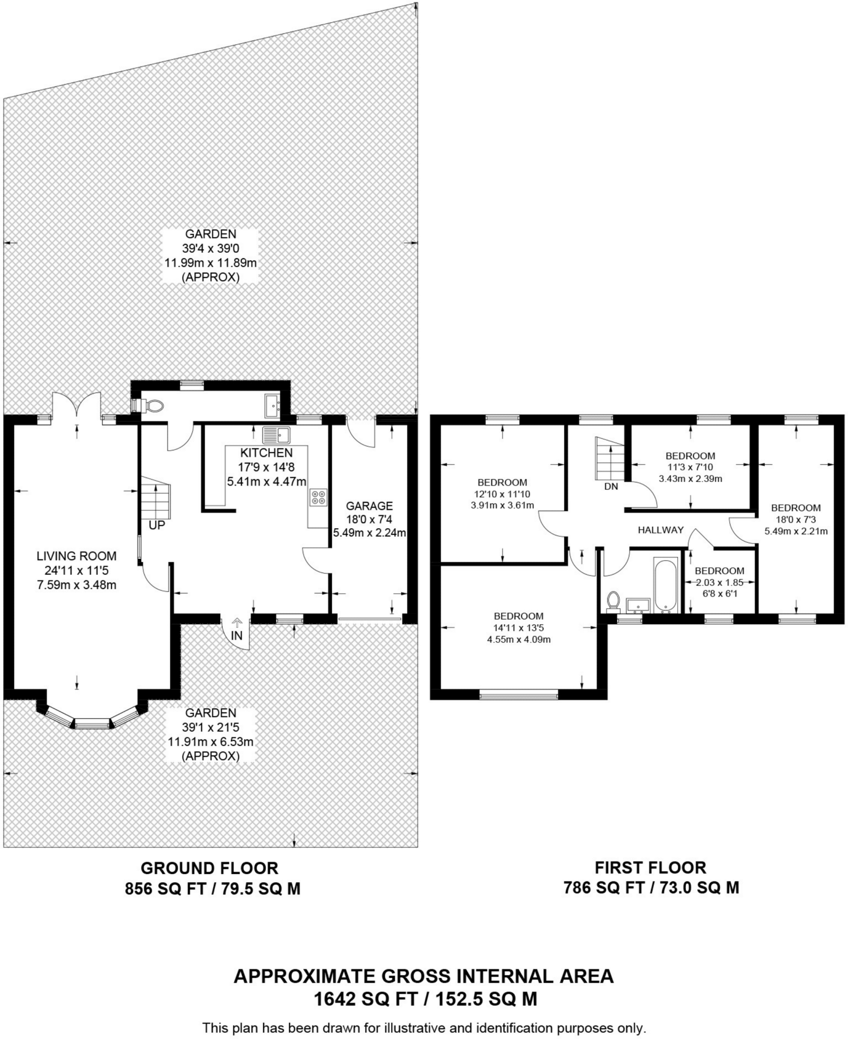
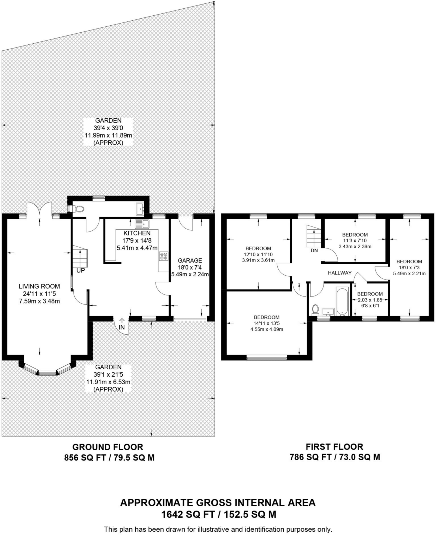
Spacious family house near Victoria Line and green spaces, ripe for updating.
- Five large bedrooms across multiple storeys, 1,642 sq ft total
- Period features: high ceilings, bay window, original fireplace
- Large separate kitchen, wood floors and flexible living spaces
- Garage and decent-sized rear garden for family use
- Double glazing installed post-2002 improves thermal performance
- Solid brick walls assumed uninsulated; retrofit likely needed
- Only two bathrooms for five bedrooms; consider reconfiguration
- Local area: very deprived index; crime recorded as average
A spacious five-bedroom period home offering generous living space, high ceilings and original features that suit a growing family. The large separate kitchen, bay-windowed reception and wood floors retain character while delivering flexible room layouts for daily life.
Practical benefits include a garage, decent-sized garden and recent double glazing. The house is a short walk from Walthamstow Central and Queens Road stations, with quick Victoria Line and Overground links, and close to Lloyd Park, Walthamstow Wetlands and well-rated primary and secondary schools.
Be clear about likely retrofit needs: the solid brick walls are assumed uninsulated and there are only two bathrooms for five bedrooms, so energy-efficiency and layout improvements would add long-term value. The local area shows higher-than-average deprivation and average crime levels, which should be considered alongside transport and amenity strengths.
An open viewing is scheduled for Saturday 4th October. For buyers seeking space, period detail and excellent transport, this property offers immediate family living with clear potential for updating and improvement.
5 bedroom house for sale in Second Avenue, Walthamstow, E17 — £1,400,000 • 5 bed • 3 bath • 1733 ft²
3 bedroom end of terrace house for sale in Farmilo Road, Walthamstow, London, E17 — £750,000 • 3 bed • 1 bath • 1481 ft²
4 bedroom terraced house for sale in Turner Road, Walthamstow, London, E17 — £850,000 • 4 bed • 2 bath • 1203 ft²
4 bedroom terraced house for sale in Ruby Road, Walthamstow, London, E17 — £995,000 • 4 bed • 2 bath • 1201 ft²
5 bedroom terraced house for sale in Albert Road, London, E17 — £950,000 • 5 bed • 3 bath • 2085 ft²
5 bedroom terraced house for sale in Turner Road, Walthamstow, London, E17 — £875,000 • 5 bed • 3 bath • 1239 ft²






















































































































































































































































































































































































































