Spacious duplex with huge private garden, moments from Camden Town amenities.
Three good-sized double bedrooms with fitted storage in main bedroom
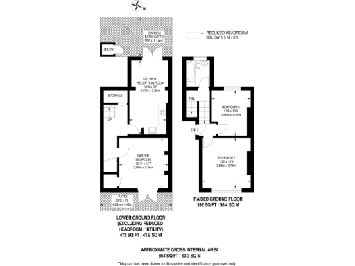
This impressive three-bedroom maisonette is arranged over lower-ground and raised-ground floors, offering generous double bedrooms and direct access to a substantial private garden. The main bedroom includes fitted storage and terrace access, while an open-plan reception/kitchen opens out to a patio — ideal for indoor-outdoor living and low-maintenance entertaining.
Set in an end-of-terrace period conversion on Camden Street, the property combines period character with contemporary finishes. At approximately 864 sq ft it suits families or sharers who value outdoor space in central Camden Town. A selection of highly regarded primary and secondary schools are within easy reach.
Practical facts are straightforward: the flat is leasehold with 148 years remaining and a below-average service charge of £700. There is a single bathroom for three bedrooms and the building dates from before 1900 with solid brick walls likely without insulation, which may mean higher heating costs or future retrofit work.
Location offers excellent transport links and fast broadband, but note the local context: the immediate area records very high crime levels and higher deprivation indices than surrounding neighbourhoods. Buyers should weigh the significant private garden and central location against these local issues and the property's basic thermal performance.
2 bedroom apartment for sale in Camden Street, London, NW1 — £850,000 • 2 bed • 1 bath • 861 ft²
2 bedroom flat for sale in Albert Street,
Camden Town, NW1 — £925,000 • 2 bed • 1 bath • 950 ft²
2 bedroom maisonette for sale in Camden Road, Camden, NW1 — £495,000 • 2 bed • 1 bath • 797 ft²
3 bedroom maisonette for sale in South Villas,
Camden, NW1 — £1,000,000 • 3 bed • 2 bath • 1263 ft²
2 bedroom maisonette for sale in Royal College Street, Camden, London, NW1 — £700,000 • 2 bed • 1 bath • 684 ft²
3 bedroom terraced house for sale in Widford,
Castle Road, NW1 — £750,000 • 3 bed • 2 bath • 966 ft²






















































































































































































































































































































































































