NW1 0HY - 2 bed camden garden maisonette in Camden Street, NW1 0HY

View on Property Piper

2 bedroom apartment for sale in Camden Street, London, NW1

Summary - 120A CAMDEN STREET LONDON NW1 0HY

2 bed 1 bath Apartment

Bright two-bed maisonette with rare private garden, close to Camden Town transport.
Private garden accessed directly from reception room
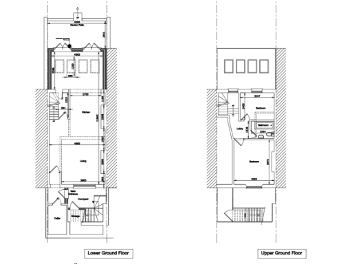
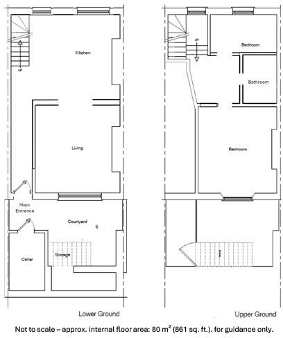
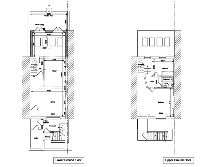
Set over ground and lower-ground levels, this two-bedroom maisonette combines period character with modern comforts. The bright reception opens onto a generous private garden — rare for central Camden — while large windows and hardwood floors give a light, airy feel throughout. Underfloor heating and integrated Neff appliances add contemporary convenience; the EPC rating is C.

Practical details suit buyers seeking a central home: bedrooms are located on the upper level for privacy, there is plentiful built-in storage, and the layout totals c.861 sq ft. Camden Town and Mornington Crescent stations are a short walk away, putting the West End, King’s Cross and central transport links within easy reach.

There are important factors to note. The property is leasehold with 87 years remaining; ground rent and lease terms should be reviewed. Service charge is £885 (noted as below average) and council tax is above average. The local area records very high crime levels, which may affect lifestyle and insurance; prospective purchasers should satisfy themselves on this point.

This maisonette will appeal to first-time buyers and city couples who prioritise outdoor space and location over a turn-key suburban home. It offers an immediate central-London lifestyle with potential to personalise finishes, while practical costs and lease length require informed consideration.

Property Details

Image Descriptions

Floorplan Description

Rooms

Textual Property Features

Target Audience

AI Tags

Detected Visual Features

Nearby Schools

Nearest Bars And Restaurants

,,,,}

Nearest General Shops

,,}

Nearest Grocery shops

,,}

Nearest Supermarkets

,,}

Nearest Religious buildings

,,}

Nearest Medical buildings

,,,}

Nearest Airports

,}

Nearest Leisure Facilities

,,,,}

Nearest Tourist attractions

,,}

Nearest Train stations

,,,,}

Nearest Bus stations and stops

,,,,}

Nearest Hotels

,,}

Tags

Local Market Stats

AirBnB Data

Similar Properties

Meta

High Res Images

Compatible Images

Low res Images

Thumbnails

Raw Images

High Res Floorplan Images

Compatible Floorplan Images

Low res Floorplan Images

FloorplanImages Thumbnail

Raw Floorplan Images