- **Standout Features:**
- Rare residential building plot in an affluent, semi-rural village setting
- Planning permission approved for a stylish detached home with modern features
- Spectacular views of the River Humber
- Spacious lot with surrounding private gardens, large driveway, and integral double garage
- Close proximity to outstanding local primary schools
- **Considerations:**
- Requires the demolition of the existing barn
- Broadband speeds are slow; mobile signal is average
- Local amenities may be limited due to rural setting
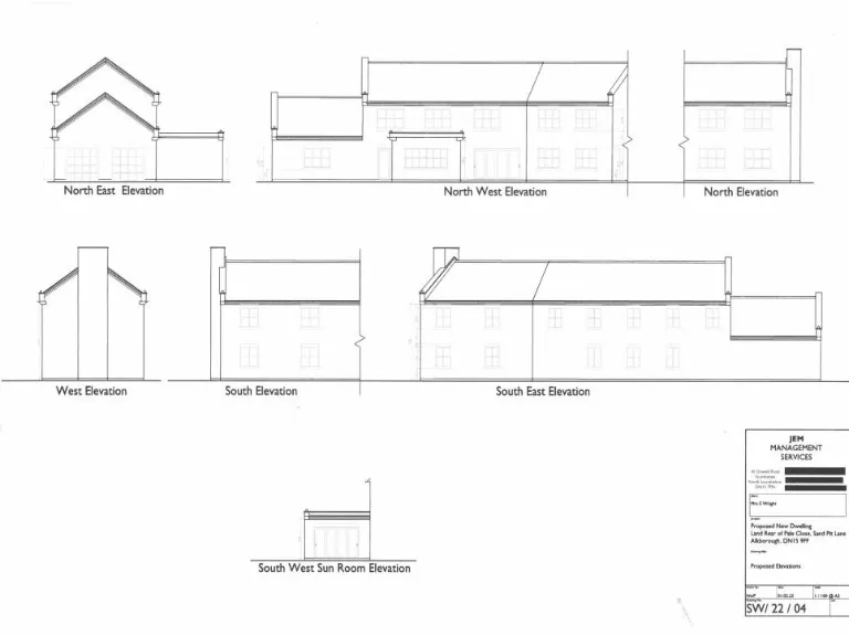
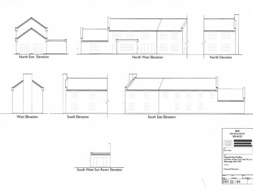
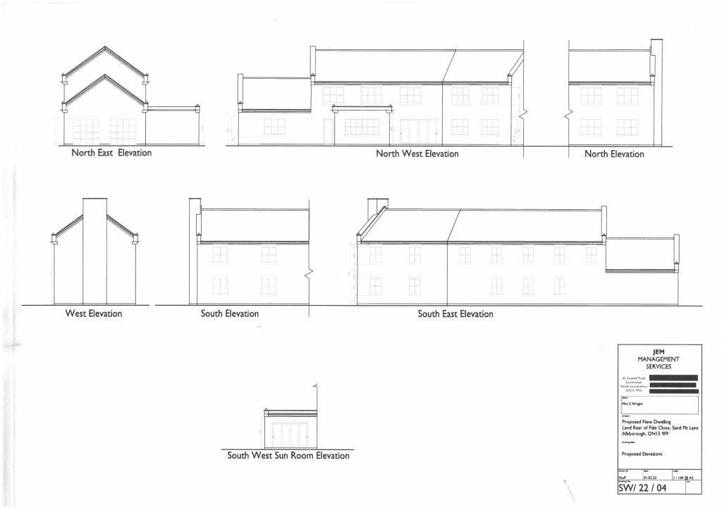
Unlock the potential of your dream home in this exceptional residential building plot located in the desirable village of Alkborough. Boasting stunning views of the River Humber, this site has been granted planning permission (PA/2023/144) for a contemporary, spacious detached dwelling, making it perfect for modern families or professionals seeking a quiet yet connected lifestyle.
The proposed design features an expansive open-plan living area, a sunroom, and four generously sized double bedrooms, including a luxurious master suite with dressing room and en-suite. With a large garden, substantial driveway, and an integral double garage, this property offers both comfort and convenience.
Enjoy the tranquility of village life while being minutes away from outstanding primary schools and surrounded by beautiful natural scenery. Please note that the renovation process involves demolishing the existing barn. With its unique potential and idyllic setting, viewing this plot is highly recommended — opportunities like this won’t last long!
Land for sale in Silver Street, Winteringham, Scunthorpe, Lincolnshire, DN15 — £235,000 • 1 bed • 1 bath
Land for sale in The Hideaway, Crowle Bank Road, Althorpe, DN17 — £230,000 • 1 bed • 1 bath
Land for sale in Northlands Road, Winterton, Scunthorpe, Lincolnshire, DN15 — £110,000 • 1 bed • 1 bath
4 bedroom detached house for sale in Sand Pit Lane, Alkborough, Lincolnshire, DN15 — £1,800,000 • 4 bed • 4 bath • 5000 ft²
Parking for sale in South View Avenue, Scunthorpe, North Lincolnshire, DN17 — £500,000 • 1 bed • 1 bath
Land for sale in West Halton Road, Coleby, DN15 — £174,950 • 1 bed • 1 bath






















