Spacious four-bedroom near UEA with garage, garden and no onward chain.
No onward chain — ready for quicker completion
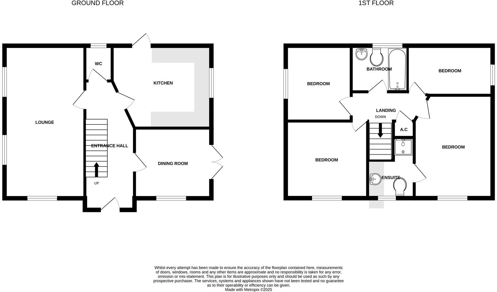
Set on a corner plot to the west of Norwich, this freehold four-bedroom detached house offers practical family living close to the University and hospital. The ground floor has a lounge, kitchen, dining room and WC; upstairs there are four bedrooms, one with an en-suite, and a family bathroom. Outside provides a driveway, single garage and an enclosed lawned garden with patio.
The property was constructed in the mid-2000s and benefits from double glazing, mains gas central heating and full-fibre broadband — useful for home working or student rental. Its location near Norwich Research Park, UEA and local amenities makes it convenient for commuters and students, and it is offered with no onward chain which can speed completion.
Practical buyers should note the garden is overgrown and will need maintenance to make the most of the outside space. The house is described with a modest overall size (approximately 1,098 sq ft) so rooms are comfortable rather than generous. Council Tax Band D, average local crime and average area deprivation are factual context for budget and community expectations.
This home suits a family seeking straightforward, ready-to-live-in accommodation close to schools and parks, or an investor looking for a near-city let close to UEA and the hospital. It presents clear potential to personalise and add value, particularly if the exterior and landscaping are refreshed.
4 bedroom semi-detached house for sale in Old School Close, Norwich, NR5 — £270,000 • 4 bed • 2 bath • 840 ft²
4 bedroom semi-detached house for sale in Alicante Way, Norwich, NR5 — £270,000 • 4 bed • 3 bath • 829 ft²
5 bedroom detached house for sale in Sukey Way, Three Score, Norwich, NR5 — £330,000 • 5 bed • 2 bath • 1195 ft²
3 bedroom detached house for sale in Corie Road, Norwich, NR4 — £425,000 • 3 bed • 2 bath • 795 ft²
4 bedroom detached house for sale in Marston Moor, Dussindale, Norwich, NR7 — £450,000 • 4 bed • 2 bath • 1192 ft²
4 bedroom detached house for sale in Speedwell Way, Norwich, NR5 — £350,000 • 4 bed • 2 bath • 1054 ft²






















































